


+5
個室
このレンタルオフィスの特徴とおすすめポイント
リゾーン(Re:ZONE)広島市役所前01は、広島の路面電車宇品線「鷹野橋」駅徒歩4分、「市役所前」駅徒歩5分の場所にある個室レンタルオフィスです。JR広島駅からはタクシーで11分程度の便利な場所です。ビル6階がリゾーン(Re:ZONE)広島市役所前01のフロアです。無人のセキュリティや防犯カメラが設置されており、ご契約者以外が自由に立入ることはありません。個室内は完全プライベート空間で、個別空調・インターネット環境つき・オフィス家具つきのセットアップオフィスです。入居にかかる初期費用は入会金の5万円のみ、保証金や敷金礼金はありません。保証人等も不要で、お申込みから最短10日程度で利用を開始することができます。
施設評価
※JUST FIT OFFICEの独自集計によるスコアになります。設備・条件
※バーチャルオフィスには適用されない場合がございます。
契約
契約種別
定期賃貸借契約
契約期間
その他
法人登記
可
期間内解約
2か月前予告
共有スペース・設備
ネットワーキング
ー
給湯室
シンク、電子レンジ
打ち合わせスペース(オープン)
ー
複合機
ー
郵便受け
エントランス設置
駐輪場
ー
駐車場
ー
共用Wi-Fi
無料
ドリンクサービス
ー
ゴミ収集
屋内ゴミ置き場
ペット
ー
シャワー
ー
TELブース
ー
ロッカー
ー
宅配ロッカー
ー
ゲスト同伴(共有ラウンジ)
可能
利用時間(共有ラウンジ)
24時間
会議室
ー
セキュリティ
入退出管理
カードキー
受付
ー
警備
無人システム
オフィス写真
共有スペースの写真

共用部_廊下。各室とも個別に施錠可能なプライベートオフィスです。
専用スペースの写真

専有部_個室。デスク・椅子・棚が完備されています。
その他の写真

共用部_トイレ。6階には個室トイレがあります。 
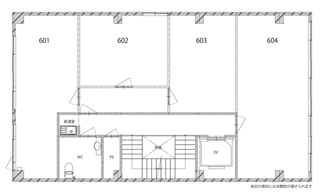
フロアマップ。ビル6階がリゾーン(Re:ZONE)広島市役所前01です。
地図
鷹の橋 広島の復興を担った、活気ある商店街エリア
リゾーン(Re:ZONE)広島市役所前01のある鷹野橋エリアは、千田通りと新広島バイパスが交差する交通の要所です。高野橋駅には路面電車が乗り入れており、広島駅まで30分以内にアクセスできるほか、自動車での行き来もしやすい立地です。大正8年から続く鷹野橋商店街は、東の鷹野橋駅から西の明治橋までを貫くアーケード街が通っており、日常用品の購入と飲食の両方のニーズを満たすことができます。商店街には書店もあるため、書籍の購入にも重宝するでしょう。商店街のほかにも、駅から歩いてすぐの距離に広島銀行・大手町支店や日赤病院など、インフラが整ったエリアです。オフィスを構えるとしても生活の拠点にするとしても利便性に満足できます。
施設からのコメント
よくある質問
【閉店】リゾーン(Re:ZONE)広島市役所前01の月額料金や初期費用が知りたい。
JUST FIT OFFICEでは、【閉店】リゾーン(Re:ZONE)広島市役所前01の料金や初期費用を掲載しております。
【閉店】リゾーン(Re:ZONE)広島市役所前01の空き状況を確認したい
【閉店】リゾーン(Re:ZONE)広島市役所前01の募集区画を掲載しております。
【閉店】リゾーン(Re:ZONE)広島市役所前01に関して問い合せをしたい
このレンタルオフィスへの問い合わせは、こちらから
お電話の場合は JUST FIT OFFICE受付センター(03-6555-3404)までお願い致します。
【閉店】リゾーン(Re:ZONE)広島市役所前01以外のレンタルオフィスも紹介して欲しいのですが、お願い出来ますか?
JUST FIT OFFICEでは10名以上の企業を対象に専任のコンシェルジュがあなたに合ったレンタルオフィスを紹介しています。
詳しくはこちらご確認ください。



