
+11
個室
このレンタルオフィスの特徴とおすすめポイント
リゾーン(Re:ZONE)梅田01は梅田駅4番出口から徒歩6分、谷町線中崎町駅から徒歩3分の場所にある個室レンタルオフィスです。ビルの3階から5階がリゾーン(Re:ZONE)梅田01のオフィスフロアです。1名用のコンパクトタイプの個室が中心で、全ての個室にデスク・椅子・棚が備え付けられています。インターネット環境も整っており、ご入居後すぐに利用を開始することができます。いずれも完全個室で24時間365日利用可能です。オフィスの住所で郵便物を受け取ることも可能で、会社登記用の住所としても使えます。ビル自体はスマートロックで、契約者以外が自由にフロアに立入ることはできません。初期費用は入会金のみで、保証金などの負担もないため、スタートアップやベンチャーにも最適な物件です。
施設評価
※JUST FIT OFFICEの独自集計によるスコアになります。設備・条件
※バーチャルオフィスには適用されない場合がございます。
契約
契約種別
定期賃貸借契約
契約期間
プランによる
法人登記
可
期間内解約
2か月前予告
共有スペース・設備
ネットワーキング
ー
給湯室
シンク、電子レンジ
打ち合わせスペース(オープン)
あり
複合機
ー
郵便受け
エントランス設置
駐輪場
ー
駐車場
ー
共用Wi-Fi
ー
ドリンクサービス
無料
ゴミ収集
ー
ペット
ー
シャワー
ー
TELブース
ー
ロッカー
ー
宅配ロッカー
ー
ゲスト同伴(共有ラウンジ)
ー
利用時間(共有ラウンジ)
24時間
会議室
ー
セキュリティ
入退出管理
カードキー
受付
ー
警備
無人システム
オフィス写真
共有スペースの写真
共用部_廊下。各室とも施錠可能な完全個室です。 共用部_冷蔵庫やウォーターサーバーはご自由にお使いいただけます。 共用部_女性用トイレ。 共用部_男性用トイレ。3回にあります。
専用スペースの写真

専有部_個室。全てのお部屋がデスク・椅子つきです。 
専有部_個室。オフィスの住所で郵便物を受け取ったり会社登記をしたりすることができます。
その他の写真

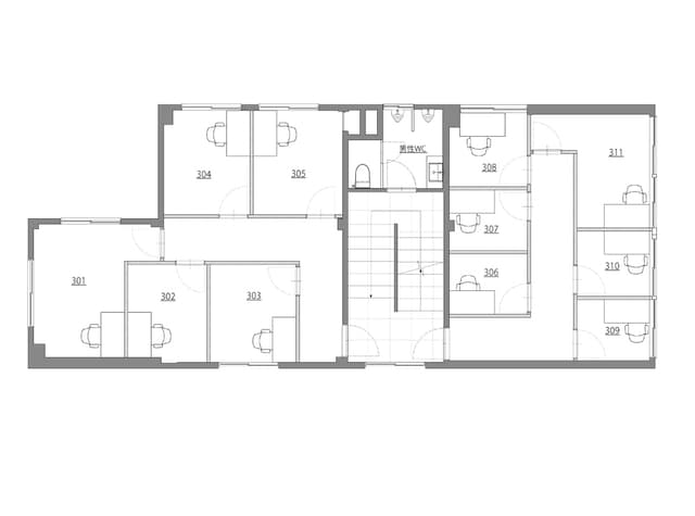
3階フロア図。 
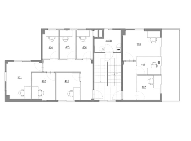
4階フロア図。 
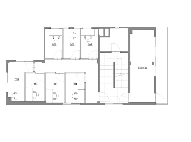
5階フロア図。 
5階フロア図。
地図
中崎町 近代的ビル群と昭和レトロの街並みが交わる観光地区
リゾーン(Re:ZONE)梅田01のある中崎町エリアは、大都会・梅田からほど近くにありながら、昔ながらの下町が広がるのどかなエリアです。昭和初期の木造家屋も数多く並んでおり、レトロな雰囲気を活かした喫茶店で休憩を楽しもうと、梅田近辺から足を運ぶビジネスパーソンの姿も数多く見られます。日本最長の商店街として知られる天神橋商店街も徒歩圏内にあるため、大阪市外からの観光客を対象としたビジネスを展開する場合に拠点を置くにも便利な立地です。中崎町駅からは大阪メトロ・谷町線と御堂筋線を利用できます。大阪を代表するビジネス街としてだけでなく、観光エリアとしての性格も強いだけあり、新幹線の停車駅である新大阪駅からもアクセスしやすくなっています。
施設からのコメント
募集終了の区画 【18区画】
よくある質問
リゾーン(Re:ZONE)梅田01の月額料金や初期費用が知りたい。
JUST FIT OFFICEでは、リゾーン(Re:ZONE)梅田01の料金や初期費用を掲載しております。
リゾーン(Re:ZONE)梅田01の空き状況を確認したい
リゾーン(Re:ZONE)梅田01の募集区画を掲載しております。
リゾーン(Re:ZONE)梅田01に関して問い合せをしたい
このレンタルオフィスへの問い合わせは、こちらから
お電話の場合は JUST FIT OFFICE受付センター(03-6555-3404)までお願い致します。
リゾーン(Re:ZONE)梅田01以外のレンタルオフィスも紹介して欲しいのですが、お願い出来ますか?
JUST FIT OFFICEでは10名以上の企業を対象に専任のコンシェルジュがあなたに合ったレンタルオフィスを紹介しています。
詳しくはこちらご確認ください。





















