


+7
個室
募集中の区画 【4区画】
このレンタルオフィスの特徴とおすすめポイント
リゾーン(Re:ZONE)泉佐野01は泉佐野駅から徒歩2分の場所にあるアクセス抜群のレンタルオフィスです。全室個室の1~3名用のコンパクトなオフィスを提供しています。全室家具付きで、インターネット環境も整っているので入居後、すぐにビジネスをスタートすることができます。24時間利用可能でゲスト同伴可能なレンタルオフィスであるため、時間を気にすることなく作業やオフィスワークに集中できます。月額料金にはインターネット利用料も含まれており、初期負担が少なく入居が可能となっています。個室は施錠可能で、スマートロックや防犯カメラなどがありセキュリティー面でも安心です。また、法人登記や士業登録なども可能です。
施設評価
※JUST FIT OFFICEの独自集計によるスコアになります。設備・条件
※バーチャルオフィスには適用されない場合がございます。
契約
契約種別
定期賃貸借契約
契約期間
その他
法人登記
可
期間内解約
2か月前予告
共有スペース・設備
ネットワーキング
ー
給湯室
シンク、電子レンジ
打ち合わせスペース(オープン)
ー
複合機
ー
郵便受け
エントランス設置
駐輪場
ー
駐車場
ー
共用Wi-Fi
ー
ドリンクサービス
ー
ゴミ収集
屋外ゴミ置き場
ペット
ー
シャワー
ー
TELブース
ー
ロッカー
ー
宅配ロッカー
ー
ゲスト同伴(共有ラウンジ)
可能
利用時間(共有ラウンジ)
24時間
会議室
ー
セキュリティ
入退出管理
カードキー
受付
ー
警備
無人システム
オフィス写真
外観写真

外観_オフィス入口。ゲストを招くことも可能です。 
外観_階段。
共有スペースの写真

共有部_給湯室。電子レンジが利用できます。
専用スペースの写真

専有部_個室。1~3名の個室を用意しています。
その他の写真

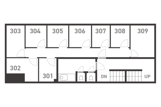
その他_フロアマップ。 
その他_お手洗い。
地図
泉佐野 自然豊かなオフィスライフの実現
リゾーン(Re:ZONE)泉佐野01がある泉佐野駅周辺は、ビジネスを始めるには最適なエリアです。まず、アクセスの良さが魅力です。関西国際空港や大阪市内へのアクセスが容易で、国内外からの移動がスムーズに行えます。この交通の便の良さは、ビジネスのチャンスを広げる大きな要因となります。また、泉佐野駅周辺には、少人数のレンタルオフィスやシェアオフィスが充実しています。これにより、同じオフィス内にさまざまな業種の人々が集まるため、ネットワークを広げる絶好の機会になる可能性があります。泉佐野の地域は、自然が豊かで、ビジネスの合間にリフレッシュできる環境が整っています。近隣には公園や海があり、仕事の合間にリフレッシュすることで、効率的に作業を進めることができます。また、地域の飲食店やカフェも充実しているため、ランチや会議の場所にも困りません。このように泉佐野駅周辺は、交通の便、コストパフォーマンス、環境のいずれも優れており、少人数のオフィスを構えるには理想的な場所です。あなたのビジネスを成功に導くためのステップとして、ぜひ泉佐野を選んでみてはいかがでしょうか。
施設からのコメント
募集終了の区画 【1区画】
よくある質問
リゾーン(Re:ZONE)泉佐野01の月額料金や初期費用が知りたい。
JUST FIT OFFICEでは、リゾーン(Re:ZONE)泉佐野01の料金や初期費用を掲載しております。
リゾーン(Re:ZONE)泉佐野01の空き状況を確認したい
リゾーン(Re:ZONE)泉佐野01の募集区画を掲載しております。
リゾーン(Re:ZONE)泉佐野01に関して問い合せをしたい
このレンタルオフィスへの問い合わせは、こちらから
お電話の場合は 050-5448-9726までお願い致します。
リゾーン(Re:ZONE)泉佐野01以外のレンタルオフィスも紹介して欲しいのですが、お願い出来ますか?
JUST FIT OFFICEでは10名以上の企業を対象に専任のコンシェルジュがあなたに合ったレンタルオフィスを紹介しています。
詳しくはこちらご確認ください。






