

+9
個室
このレンタルオフィスの特徴とおすすめポイント
リゾーン(Re:ZONE)心斎橋01は、本町駅から徒歩4分と好立地のレンタルオフィスです。せんば心斎橋商店街の中にオフィスが入っているビルがあるので、雨の日でも濡れずにアクセス可能です。ビルの北館3階と南館4階にあり、部屋プランは1名~2名で利用することができます。当オフィスの特徴の一つは南館4階が女性専用フロアになっていることです。女性の方でも安心して利用できます。北館3階と南館4階の共用部にはミニキッチンや冷蔵庫、電子レンジ等も設置しています。そのため、休憩時にも便利です。ビル1階にはポストがあり、各種テナント名板も利用できます。セキュリティー面については、オートロック、ダブルロックシステム、監視カメラにより安心できる環境です。個室内には無料でデスク、イス、書棚を設置しています。また、インターネット回線もありますので、契約後にすぐにビジネスを始められます。
施設評価
※JUST FIT OFFICEの独自集計によるスコアになります。設備・条件
※バーチャルオフィスには適用されない場合がございます。
契約
契約種別
定期賃貸借契約
契約期間
その他
法人登記
可
期間内解約
2か月前予告
共有スペース・設備
ネットワーキング
ー
給湯室
シンク、電子レンジ
打ち合わせスペース(オープン)
ー
複合機
ー
郵便受け
エントランス設置
駐輪場
ー
駐車場
ー
共用Wi-Fi
無料
ドリンクサービス
ー
ゴミ収集
屋内ゴミ置き場
ペット
ー
シャワー
ー
TELブース
ー
ロッカー
ー
宅配ロッカー
ー
ゲスト同伴(共有ラウンジ)
可能
利用時間(共有ラウンジ)
24時間
会議室
ー
セキュリティ
入退出管理
カードキー
受付
ー
警備
無人システム
オフィス写真
共有スペースの写真

共用部_廊下。左右にプライベートオフィスが並びます。各個室とも施錠可能です。 
共用部_3階お手洗い。リニューアルされた清潔感のある内装です。
専用スペースの写真
個室_全て家具付・個別空調の物件です。 個室_南館4階は女性専用フロアです。 個室_無料で登記及び住所利用ができます。 
個室_インターネット設備が備わっており、入居後すぐに利用開始できます。
その他の写真

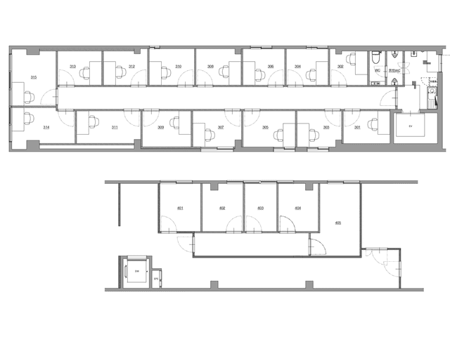
その他_フロア図。3・4階がオフィスフロアです。4階は女性専用フロアです。
地図
本町 船場エリアの一角を占める、歴史ある商業地区
リゾーン(Re:ZONE)心斎橋01のある本町エリアは、一大繁華街の心斎橋から徒歩圏内に位置する、ミナミ側のビジネス街の中心的エリアです。周辺には金融系大手のオリックスや繊維系メーカーのユニチカが大阪本社を置くなど、複数の企業の本社機能が集まっています。本町に隣接する阿波座地区も、古い歴史を持つ商業地区でもあり、中華人民共和国・大阪領事館もあることから警察による巡回・警備も厳重で、治安が良好なエリアです。タワーマンションも数多くあり、閑静な住宅街として人気のある地区となっています。大阪メトロの本町駅は御堂筋線・四つ橋線・中央線という主要路線が集まる交通のハブであり、梅田駅へは5分でアクセスすることができます。
施設からのコメント
募集終了の区画 【14区画】
よくある質問
リゾーン(Re:ZONE)心斎橋01の月額料金や初期費用が知りたい。
JUST FIT OFFICEでは、リゾーン(Re:ZONE)心斎橋01の料金や初期費用を掲載しております。
リゾーン(Re:ZONE)心斎橋01の空き状況を確認したい
リゾーン(Re:ZONE)心斎橋01の募集区画を掲載しております。
リゾーン(Re:ZONE)心斎橋01に関して問い合せをしたい
このレンタルオフィスへの問い合わせは、こちらから
お電話の場合は JUST FIT OFFICE受付センター(03-6555-3404)までお願い致します。
リゾーン(Re:ZONE)心斎橋01以外のレンタルオフィスも紹介して欲しいのですが、お願い出来ますか?
JUST FIT OFFICEでは10名以上の企業を対象に専任のコンシェルジュがあなたに合ったレンタルオフィスを紹介しています。
詳しくはこちらご確認ください。




















