


+10
個室
このレンタルオフィスの特徴とおすすめポイント
リゾーン(Re:ZONE)福島01は、2022年3月に開業した個室レンタルオフィスです。JR福島駅から徒歩3分の場所にあります。大阪市内を中心に複数拠点を展開するリゾーン(Re:ZONE)シリーズですが、福島01は元々宿泊施設を運営していたフロアにあるため、防音性に優れている点が特長です。全室家具・インターネット環境付きで、3~4名用の大きさの個室が中心です。また、全室個別空調の完全個室であるため、他の入居者を気にすることなく利用することができます。リゾーン(Re:ZONE)福島01の住所で会社登記をしたり、郵便物を受け取ることも可能です。追加料金はかかりません。各階の出入り口はスマートロックを採用しており、契約者以外が立入ることはできません。個室はもちろん、それぞれ施錠が可能なプライベート空間です。
施設評価
※JUST FIT OFFICEの独自集計によるスコアになります。設備・条件
※バーチャルオフィスには適用されない場合がございます。
契約
契約種別
定期賃貸借契約
契約期間
その他
法人登記
可
期間内解約
2か月前予告
共有スペース・設備
ネットワーキング
ー
給湯室
シンク、電子レンジ
打ち合わせスペース(オープン)
ー
複合機
ー
郵便受け
エントランス設置
駐輪場
ー
駐車場
ー
共用Wi-Fi
無料
ドリンクサービス
ー
ゴミ収集
屋内ゴミ置き場
ペット
ー
シャワー
ー
TELブース
ー
ロッカー
ー
宅配ロッカー
ー
ゲスト同伴(共有ラウンジ)
ー
利用時間(共有ラウンジ)
ー
会議室
ー
セキュリティ
入退出管理
カードキー
受付
ー
警備
無人システム
オフィス写真
共有スペースの写真

共用部_給湯室。電子レンジや冷蔵庫、ケトルも自由にご利用いただけます。
専用スペースの写真

専有部_個室。インターネット環境が整備されており、LANケーブルを差し込むだけで利用可能です。 
専有部_個室。オフィスの住所で会社登記をしたり、郵便物を受け取ることもできます。 
専有部_個室。全室個別空調で、ストレスフリーにお過ごしいただけます。 
専有部_窓に面した明るい個室が多いのが特長です。
その他の写真

共用部_トイレ。男女別のトイレをご用意しています。 
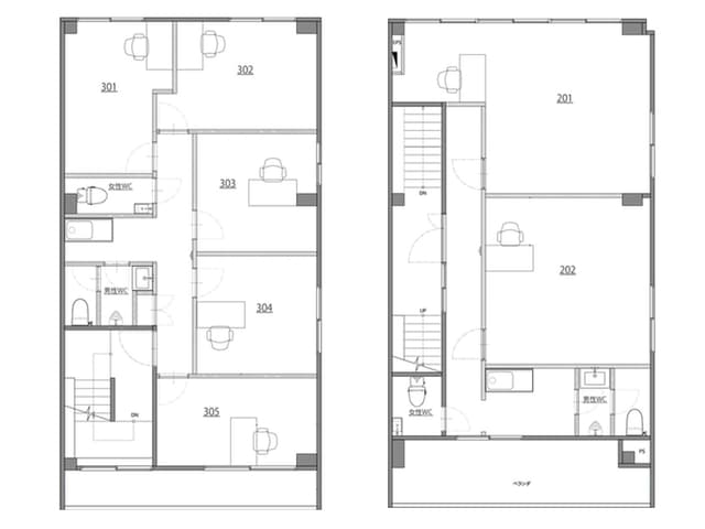
フロア図(2-3階)。 
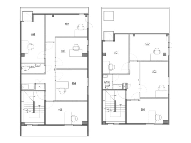
フロア図(4-5階)。
地図
福島 利便性や治安、あらゆる面で優れた大人気エリア
リゾーン(Re:ZONE)福島01のある福島エリアは、福島区の中でも梅田駅から徒歩圏内にある、飲食店などの商業施設が集まる地区です。飲食店が多くつらなる繁華街のわりには、治安が良好であり、住みよいエリアとしても知られています。街灯が多く、夜道も明るいことから、一人暮らしを考えている女性にも選ばれているエリアです。繁華街の規模、住環境の質・アクセスの利便性と、あらゆる面において大阪市内でもトップクラスで弱点がなく、ハイバランスなエリアです。もちろん、朝日放送テレビも局を置くなど、オフィス街としても発展しています。梅田が近いばかりでなく、新幹線の停車駅である新大阪駅まで15分以内でアクセス可能で、出張などにも適した立地です。
施設からのコメント
募集終了の区画 【14区画】
よくある質問
リゾーン(Re:ZONE)福島01の月額料金や初期費用が知りたい。
JUST FIT OFFICEでは、リゾーン(Re:ZONE)福島01の料金や初期費用を掲載しております。
リゾーン(Re:ZONE)福島01の空き状況を確認したい
リゾーン(Re:ZONE)福島01の募集区画を掲載しております。
リゾーン(Re:ZONE)福島01に関して問い合せをしたい
このレンタルオフィスへの問い合わせは、こちらから
お電話の場合は JUST FIT OFFICE受付センター(03-6555-3404)までお願い致します。
リゾーン(Re:ZONE)福島01以外のレンタルオフィスも紹介して欲しいのですが、お願い出来ますか?
JUST FIT OFFICEでは10名以上の企業を対象に専任のコンシェルジュがあなたに合ったレンタルオフィスを紹介しています。
詳しくはこちらご確認ください。
















