


+17
個室
セットアップオフィス
このレンタルオフィスの特徴とおすすめポイント
I/O shimbashi(アイオーシンバシ)は、東京メトロ銀座線「新橋」駅から徒歩1分の場所にあるセットアップオフィスです。2~6階が基準階面積約57平米・各階1テナント専有のオフィスフロアで、各フロア約15名が入居可能です。2020年8月にフルリニューアルが行われ、内装のデザイン性が非常に高く、隣にコンビニエンスストアを有する利便性も兼ね備えています。保険会社に加入することで敷金ゼロにすることができ、且つデザイン性に優れた家具が備わっているため、初期費用を抑えることができます。また水光熱費・清掃費が賃料に含まれているため、ランニングコストが明瞭になります。
施設評価
※JUST FIT OFFICEの独自集計によるスコアになります。設備・条件
※バーチャルオフィスには適用されない場合がございます。
契約
契約種別
定期賃貸借契約
契約期間
その他
法人登記
可
期間内解約
その他
共有スペース・設備
ネットワーキング
ー
給湯室
シンクのみ
打ち合わせスペース(オープン)
ー
複合機
ー
郵便受け
エントランス設置
駐輪場
ー
駐車場
ー
共用Wi-Fi
ー
ドリンクサービス
ー
ゴミ収集
屋内ゴミ置き場
ペット
ー
シャワー
ー
TELブース
ー
ロッカー
ー
宅配ロッカー
あり
ゲスト同伴(共有ラウンジ)
可能
利用時間(共有ラウンジ)
24時間
会議室
ー
セキュリティ
入退出管理
カードキー
受付
ー
警備
無人システム
オフィス写真
外観写真

_建物外観_白と黒を基調にしたスタイリッシュな建物です。 
_建物外観_新橋駅から徒歩1分の場所にあります。 
2階平面図 
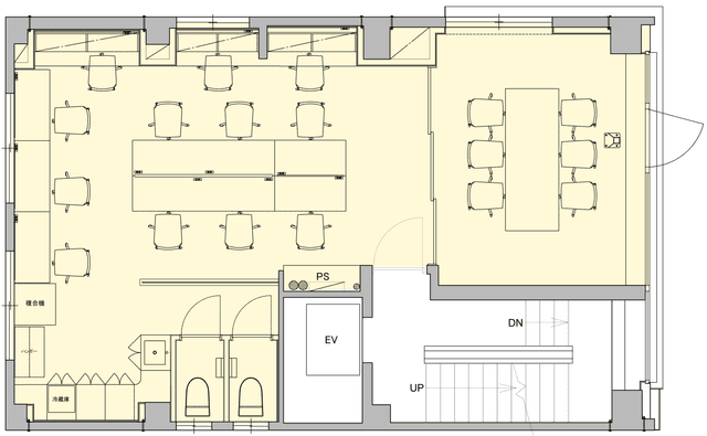
4階平面図
共有スペースの写真

_屋上_開放的な屋上デッキスペースを利用することができます。
専用スペースの写真

_専有部_2階_シンプルかつスタイリッシュな執務室となっています。 
_専有部_4階_約15名が入居できる十分なスペースがあります。 
_専有部_5階_デザイン性に優れた内装となっています。 
_専有部_4階_会議室ルームとして利用できるスペースです。
その他の写真

_その他_全てのフロアに空調が3つ備わっています。 
_その他_全てのフロアに空調が3つ備わっています。 
_その他_照明は幅広く設置されており、明るい雰囲気の環境になっています。 
_その他_5階フロアは、ソファーや植物などデザイン性に優れた環境になっています。
物件周辺情報の画像

近隣のコンビニ_ファミリーマートメトロ新橋駅店(徒歩1分) 
近隣のカフェ_プロント銀座ナイン店(徒歩2分) 
近隣の金融機関_三井住友信託銀行本店営業部 新橋出張所(徒歩3分) 
近隣の郵便局_新橋郵便局(徒歩4分)
地図
新橋 多くの企業が集まる歴史あるオフィス街
I/O shimbashiは、JR新橋駅から徒歩1分の好立地にあり、新橋駅周辺の魅力を存分に感じることができます。新橋駅周辺は、ビジネス街としてだけでなく、飲食店やエンターテイメント施設などが豊富にあるため、オフィスを構えるには非常に魅力的な場所です。まず、新橋駅周辺は各線の乗り入れ等でアクセスが非常に良いです。JR、都営地下鉄、ゆりかもめなど、さまざまな路線が交差しており、都内はもちろん、横浜や千葉、埼玉などからも利便性よくアクセスできます。これは、社員の通勤や取引先との打ち合わせにも大きなメリットとなります。また、新橋駅周辺はビジネス街として発展してきたため、オフィスビルが立ち並んでいます。そのため、他社との交流もしやすく、新たなアイデアやビジネスチャンスを生み出すきっかけにもなります。さらに、新橋駅周辺には多くの飲食店が点在しています。ランチや打ち上げ、接待などに利用できる店舗が多いため、社員の満足度向上や交流の場としても有効です。新橋駅周辺は、ビジネスだけでなく、様々な面で魅力があります。I/O shimbashiでオフィスを構えることで、新橋で働くことの魅力を最大限に享受することができるでしょう。
施設からのコメント
よくある質問
I/O shimbashi(アイオー新橋)の月額料金や初期費用が知りたい。
JUST FIT OFFICEでは、I/O shimbashi(アイオー新橋)の料金や初期費用を掲載しております。
I/O shimbashi(アイオー新橋)の空き状況を確認したい
I/O shimbashi(アイオー新橋)の募集区画を掲載しております。
I/O shimbashi(アイオー新橋)に関して問い合せをしたい
このレンタルオフィスへの問い合わせは、こちらから
お電話の場合は JUST FIT OFFICE受付センター(03-6555-3404)までお願い致します。
I/O shimbashi(アイオー新橋)以外のレンタルオフィスも紹介して欲しいのですが、お願い出来ますか?
JUST FIT OFFICEでは10名以上の企業を対象に専任のコンシェルジュがあなたに合ったレンタルオフィスを紹介しています。
詳しくはこちらご確認ください。












