


+14
個室
このレンタルオフィスの特徴とおすすめポイント
12NISHISHINJUKU(ジュウニ西新宿)は、新宿駅と初台駅の中間に位置するフルリノベーションされたオフィスです。住まいの機能の一部をオフィスに持たせ、「暮らしを自由にするオフィス」というコンセプトでデザインされています。全体的に黒を基調としたシックなデザインで、どんな業種でも使いやすいシンプルな内装です。家具付の個室と家具なしの個室がありますが、いずれも約50㎡のワンフロア貸しのタイプでバーテンションなどで自由にレイアウトを変更することができます。約50㎡の専有部分に加え、2階の共用ラウンジにはシェアキッチンがあるため、社内ミーティングやランチミーティングなど自由にお使いいただけます。新宿駅からは少し距離がありますが、最寄りの出口からは6分程度の立地で、郵便局・コンビニ・新宿区新宿中央公園やワシントンホテルの飲食店通りなどが徒歩圏内にあります。
施設評価
※JUST FIT OFFICEの独自集計によるスコアになります。口コミ
個室(10名)
- オフィスについて
- 周辺環境について
- 共用施設やセキュリティについて
- 内覧時の担当者の対応について
契約理由
初期費用、家賃、駅からのアクセス、入居可能タイミング、設備、担当者のケアなどが良かったため。契約期間縛りのキャンペーンについては現状のコロナ禍、拡張と縮小の両方を視野に入れないとならないオフィス物件という先行きの自由度を確保したい場合に向いていないかも。
移転理由
オフィスを縮小移転するため。
周辺環境についての良い点・悪い点
新宿駅からは徒歩10分以上とやや距離がある。コンビニが少ない。コインパーキングが少ない。都庁が近いため手続きが楽。
共用施設やセキュリティについての良い点・悪い点
共有スペースは入居テナントとその人数に対して、やや狭いかも。実際に活用してきたときには冷蔵庫の共有など課題は出るかも。セキュリティはしっかりしていて満足。ごみ捨てが新宿区の指定日に各自で出さないとならないのがやや不便。
内覧時の担当者の対応についての良い点・悪い点
リマインドメール、打合せ時にも早めに待っていてくれる、必要な書類は準備万全など非常に満足しています。
入居前のオフィスについて
一般賃貸でしたが、今回の移転では一般の賃貸オフィスは検討しなかった。コロナ禍、会社(オフィス固定費)について自由度を上げたかったから。
※口コミは、利用当時の個人の感想に基づいています。
※サービス内容や設備・仕様などは変更されている場合があり、現在の状況とは異なる可能性があります。
設備・条件
※バーチャルオフィスには適用されない場合がございます。
契約
契約種別
定期賃貸借契約
契約期間
その他
法人登記
可
期間内解約
その他
共有スペース・設備
ネットワーキング
あり
給湯室
シンク、電子レンジ
打ち合わせスペース(オープン)
あり
複合機
ー
郵便受け
エントランス設置
駐輪場
ー
駐車場
ー
共用Wi-Fi
無料
ドリンクサービス
ー
ゴミ収集
屋外ゴミ置き場
ペット
ー
シャワー
ー
TELブース
ー
ロッカー
ー
宅配ロッカー
あり
ゲスト同伴(共有ラウンジ)
可能
利用時間(共有ラウンジ)
24時間
会議室
有料
セキュリティ
入退出管理
鍵
受付
ー
警備
無人システム
オフィス写真
外観写真

外観_ビル外観。1987年竣工のビルですが、内装は2021年9月にリニューアルしています。 
共用部_2階共用ラウンジ入り口。
共有スペースの写真

共用部_2階共用ラウンジ。入居者が自由に利用できるラウンジです。 
共用部_2階共用ラウンジ。オフィス物件にしては珍しい「小上がり」がついています。 
共用部_2階共用ラウンジのシェアキッチン。入居者は自由に利用できます。 
共用部_2階共用ラウンジ内の1名用ブース席。
専用スペースの写真

個室_401号室。レイアウトを設計しやすいワンフロアタイプの貸し出しです。 
個室_401号室。家具付のセットアップ区画と家具なしの区画があります。 
個室_801号室。NUROBizを導入しており、入居後すぐにインターネットが利用できます。 
個室_301号室。NUROBizを導入しており、入居後すぐにインターネットが利用できます。
その他の写真

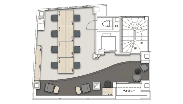
フロア図_家具つきの801号室レイアウト図。
物件周辺情報の画像

近隣の金融機関_みずほ銀行 新宿南口支店 KDDIビル出張所 (徒歩5分) 近隣の郵便局_KDDIビル内郵便局 (徒歩5分) 近隣のコンビニ_ミニストップ 西新宿3丁目店 (徒歩1分) 
近隣の行政機関_東京都庁 (徒歩5分)
地図
新宿 多様な機能を備えた魅力あふれる街
ジュウニ西新宿(12NISHISHINJUKU)のある新宿は世界一の乗降客数を誇る新宿駅周辺のエリアです。新宿駅はJRや私鉄など多くの路線が乗り入れており、都内だけでなく関東圏へのアクセスの便利さは言うまでもありません。駅周辺は多くの商業施設が立ち並び、世代を問わず多様なニーズに対応した店舗が集積しています。駅から少し離れた西新宿を中心としたエリアには超高層ビルをはじめとした大規模なオフィスが集まっており、サービス業から建設・インフラ・不動産業など様々な業種において本社機能が集まる場所となっています。また新宿中央公園や新宿御苑など、都心にいながら豊かな自然に触れることができる公園があるのも特徴です。周辺住民はもちろん、周辺のオフィスで働くワーカーのリフレッシュ場所としても親しまれています。都市機能や商業・娯楽、観光など様々な機能が集まった新宿でビジネスを始めてみてはいかがでしょうか。
施設からのコメント
「12 NISHISHINJUKU」は、専有フロアだけでなく、リビングダイニングキッチンを設けた共用フロアをご利用いただけます。オフィスの空間も時間も自分らしく使いこなすことを可能にし、新しい暮らし方、生き方を知るきっかけに出会うことができる場所です。
【12 NISHISHINJUKUの特徴】
1. 使いやすい1フロア貸し
10名程度で利用できる1フロア構成のため、他社を気にせずご利用いただくことが可能です。
2. 内装済みセットアップオフィス
NURO Biz導入済みのため、入居後すぐにご使用いただけます。また家具付きプランもあるため、移転の手間や初期コストを抑えることができます。
3. 多目的に使えるLDK
専有フロアだけでなく、リビングダイニングキッチンを設けた共用フロア(2階)をご利用いただけます。社内の交流やイベントの他、仕事の合間にランチを作るなど様々な使い方が可能です。
4. オン/オフを切り替えるフロアデザイン
1フロアの中を白と黒の二つの空間に分けることで、オフィスの中にリラックスできるスペースを生み出しています。オリジナルのオフィス空間を作る追加工事も可能です。
よくある質問
ジュウニ西新宿の月額料金や初期費用が知りたい。
JUST FIT OFFICEでは、ジュウニ西新宿の料金や初期費用を掲載しております。
ジュウニ西新宿の空き状況を確認したい
ジュウニ西新宿の募集区画を掲載しております。
ジュウニ西新宿に関して問い合せをしたい
このレンタルオフィスへの問い合わせは、こちらから
お電話の場合は JUST FIT OFFICE受付センター(03-6555-3404)までお願い致します。
ジュウニ西新宿以外のレンタルオフィスも紹介して欲しいのですが、お願い出来ますか?
JUST FIT OFFICEでは10名以上の企業を対象に専任のコンシェルジュがあなたに合ったレンタルオフィスを紹介しています。
詳しくはこちらご確認ください。












