


+19
個室
このレンタルオフィスの特徴とおすすめポイント
ワウク(WOWK)芝公園は、芝公園駅から徒歩5分・赤羽橋駅からも徒歩5分の三田通りから一本入った静かな場所にあるコンパクトタイプのオフィスです。遠くからも目を引く外観の2022年築のビルです。2階から8階まで、すべてフロア貸しでそれぞれ30平米前後のコンパクトなオフィスです。何より特徴的なのは、各フロア内にWEBミーティング用の小部屋がついていることです。後付けの簡易的な防音室ではなく、空調完備の1~2畳の個室が各フロアに1~2室ずつ用意されており、ちょっとした打ち合わせやテレビ会議を行うのに最適です。1階部分にはちょっとした打ち合わせもできるエレベーターホールがあり、屋上には見晴らしの良いテラスもあり、各フロアの入居者が自由に出入りすることができます。
施設評価
※JUST FIT OFFICEの独自集計によるスコアになります。設備・条件
※バーチャルオフィスには適用されない場合がございます。
契約
契約種別
定期賃貸借契約
契約期間
その他
法人登記
可
期間内解約
2か月前予告
共有スペース・設備
ネットワーキング
ー
給湯室
ー
打ち合わせスペース(オープン)
あり
複合機
ー
郵便受け
エントランス設置
駐輪場
ー
駐車場
ー
共用Wi-Fi
無料
ドリンクサービス
ー
ゴミ収集
ー
ペット
ー
シャワー
ー
TELブース
ー
ロッカー
ー
宅配ロッカー
あり
ゲスト同伴(共有ラウンジ)
可能
利用時間(共有ラウンジ)
24時間
会議室
ー
セキュリティ
入退出管理
鍵
受付
ー
警備
無人システム
オフィス写真
外観写真

建物外観。デザイン性の高い外観が目を引きます。 
建物外観。2階から8階がオフィスフロアです。各階1テナントずつの専有フロアです。 
建物外観。全フロア個別空調です。光熱費は管理費に含まれています。 
エントランス。1階はエントランスとちょっとした打ち合わせのできるラウンジスペースです。
共有スペースの写真

ルーフトップバルコニー。各階のご契約者様は自由に利用できます。 
1階共用フロア。集合ポストや宅配ロッカーが設置されています。 
WOWK屋上 
ルーフバルコニーからの東京タワー
専用スペースの写真

専有部。1フロア1テナント用です。内装・空調・インターネット工事は完了しています。 
5階専有部。セットアップ済みです。キャンペーン中につき家具付きでも家賃は据え置きです。 
3階専有部。セットアップ済みです。キャンペーン中につき家具付きでも家賃は据え置きです。 
6階専有部。セットアップ済みです。キャンペーン中につきディスプレイ含め家具付きでも家賃は据え置きです。
その他の写真

専有部_フロア内のインナールーム。閉塞感を感じないよう、すべて窓つき・空調付きの個室が備わっています。 専有部_バルコニー。バルコニーが付帯しているフロアもあります。 
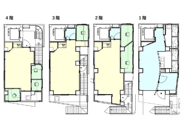
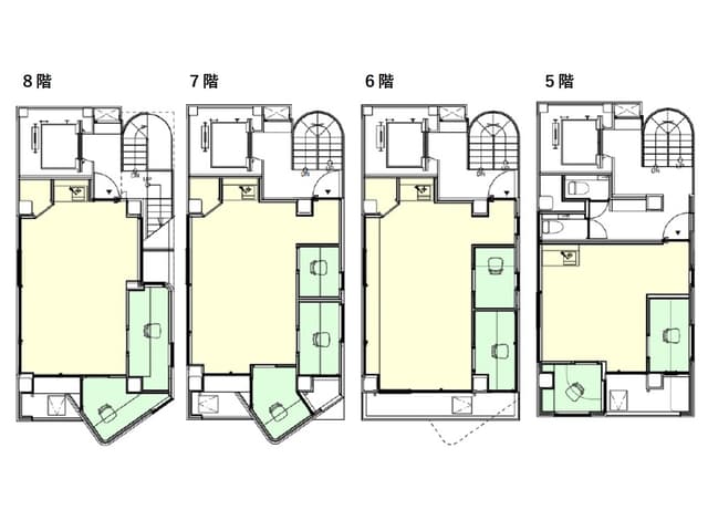
フロアマップ。 
フロアマップ。
地図
芝公園 古い歴史と緑あふれる街
ワウク(WOWK)芝公園のある芝公園は、その名の通り芝公園を中心とした街です。公園名でもありつつ、エリア名でもあります。公園は1873年に開園した都内でも有数の歴史を持っています。増上寺を取り囲むような敷地を持っているように、もともとは増上寺の敷地内の庭園でした。徳川家康によって、増上寺が麹町から移転されたことがきっかけであり、明治時代に公園として分離されました。現在では、園内に遊具やグラウンドだけでなく、ホテル、学校、図書館など幅広いジャンルの施設があります。また、都内ではあまり着目されにくいですが、前方後円墳や貝塚もあります。公園付近のこのエリアでは、学校などの教育機関や大使館もあります。そして、最大の見どころが東京タワーです。公園の西側に位置し、様々な人が訪れる観光スポットになっています。
施設からのコメント
「WOWK芝公園(ワウク芝公園)」は各階1フロア1テナント専用使用となり、またフロアごとに完全個室型のWOWKブース(完全個別空調、窓付き、1~3ブース)を設置することによりシェアオフィスで発生するオフィスノイズ問題を解決しています。
トイレを1階・5階に集約し、貸室面積の有効活用とメンテナンスフリー化を実現するとともに、さまざまに利用が可能な1階ラウンジや屋上ルーフトップを共用部として開放。
即日使用可能な各フロア専用Wi-Fi設備も完備しておりインターネットインフラも万全。
また、スマートフォン連動の専用アプリによる鍵管理システムを導入しており、フレキシブルな活用が可能です。
水光熱費、インターネット使用料、ゴミ処理費は管理費に含んでおり、面倒な経理業務も軽減。
交通の便にも優れ、周辺の4駅5路線が利用可能。東京駅、品川駅をはじめとする主要ターミナル駅へも乗り換えなしでアクセスが可能です。
よくある質問
ワウク(WOWK)芝公園の月額料金や初期費用が知りたい。
JUST FIT OFFICEでは、ワウク(WOWK)芝公園の料金や初期費用を掲載しております。
ワウク(WOWK)芝公園の空き状況を確認したい
ワウク(WOWK)芝公園の募集区画を掲載しております。
ワウク(WOWK)芝公園に関して問い合せをしたい
このレンタルオフィスへの問い合わせは、こちらから
お電話の場合は JUST FIT OFFICE受付センター(03-6555-3404)までお願い致します。
ワウク(WOWK)芝公園以外のレンタルオフィスも紹介して欲しいのですが、お願い出来ますか?
JUST FIT OFFICEでは10名以上の企業を対象に専任のコンシェルジュがあなたに合ったレンタルオフィスを紹介しています。
詳しくはこちらご確認ください。












