


+14
個室
このレンタルオフィスの特徴とおすすめポイント
ギルド(GUILD)道玄坂は既存ビルをリノベーションした、スタートアップ向けの新たなスモールオフィスです。渋谷駅から徒歩4分に位置しているため、各地へのアクセスもスムーズに行えます。オフィスでは、内装やデスク・チェアなどのオフィス家具、インターネット環境完備の個室が用意されており、入居後はすぐにビジネスに取り組める環境が整えられています。また、ベンチャーキャピタルと協業した様々なプログラムが開催されており、スタートアップの成長につながる機会を提供しています。オフィスを運営する「東急不動産グループ」との事業連携、資金支援、交流機会などのメニューも用意されており、新たなビジネスの創出を考えている企業様におすすめのオフィスです。
施設評価
※JUST FIT OFFICEの独自集計によるスコアになります。設備・条件
※バーチャルオフィスには適用されない場合がございます。
契約
契約種別
定期賃貸借契約
契約期間
その他
法人登記
可
期間内解約
その他
共有スペース・設備
ネットワーキング
ー
給湯室
ー
打ち合わせスペース(オープン)
ー
複合機
有料
郵便受け
エントランス設置
駐輪場
ー
駐車場
ー
共用Wi-Fi
無料
ドリンクサービス
ー
ゴミ収集
屋内ゴミ置き場
ペット
ー
シャワー
ー
TELブース
ー
ロッカー
ー
宅配ロッカー
ー
ゲスト同伴(共有ラウンジ)
ー
利用時間(共有ラウンジ)
ー
会議室
有料
セキュリティ
入退出管理
カードキー
受付
ー
警備
ー
オフィス写真
外観写真

外観_オフィスは渋谷駅から徒歩4分に位置しています。
共有スペースの写真

共用部_カードキーを利用したセキュリティが導入されており、安心してオフィスをご利用いただけます。 
共用部_オフィス内は明るくおしゃれなデザインで統一されています。 
共用部_オフィス2F入り口には、入居企業様用の専用ポストが備え付けられています。 
共用部_会議室。モニター完備の会議室が設けられています。
専用スペースの写真

個室_個別空調完備の完全個室なので、快適な環境で作業に取り組めます。 
個室_採光、開放感に優れた窓付き個室もご用意しています。 
個室_内装・家具類が備え付けのため、入居後はすぐにビジネスに取り組めます。 
個室_個室内清掃も無料で行っているため、清潔な環境で仕事に取り組むことができます。
その他の写真

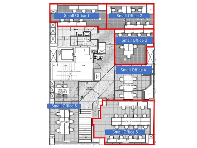
その他_フロアマップ。オフィス2階フロア案内図です。
地図
渋谷 都内屈指の繫華街
ギルド(GUILD)道玄坂のある渋谷は、都内でも有数の規模を誇る繫華街です。渋谷駅にはJR山手線、京王井の頭線、東急東横線、東京メトロ銀座線など数多くの路線が乗り入れており、都内の移動はもちろん、神奈川・千葉・埼玉などの近郊都市へのアクセスにも優れたエリアです。渋谷駅の周辺には「渋谷スクランブルスクエア」や「渋谷ヒカリエ」などの商業施設が集まっており、若者を中心に数多くの観光客で賑わいます。また、渋谷エリアはビジネス街としても高い人気を誇り、IT企業やベンチャー企業をはじめ、多くの企業が集まっています。郵便局や銀行などのビジネスを行う上で欠かせない施設が揃っているため、新たにビジネスを始めようと考える企業様におすすめのエリアです。
施設からのコメント
渋谷・道玄坂のスタートアップ企業様向けのワークプレイスが募集中です。
内装、家具は備え付けで、賃料には水光熱費・清掃費・Wi-Fiが含まれており、すぐにビジネスがはじめられる環境です。
GUILD(ギルド)という名称は、西欧の中世都市に組織された職業別組合のように、事業の急激な拡大という共通目標と優れた技術やアイデアを有するスタートアップが集い、切磋琢磨しながら成長を遂げる場所となってほしい、という願いをこめたものです。
よくある質問
ギルド(GUILD)道玄坂の月額料金や初期費用が知りたい。
JUST FIT OFFICEでは、ギルド(GUILD)道玄坂の料金や初期費用を掲載しております。
ギルド(GUILD)道玄坂の空き状況を確認したい
ギルド(GUILD)道玄坂の募集区画を掲載しております。
ギルド(GUILD)道玄坂に関して問い合せをしたい
このレンタルオフィスへの問い合わせは、こちらから
お電話の場合は JUST FIT OFFICE受付センター(03-6555-3404)までお願い致します。
ギルド(GUILD)道玄坂以外のレンタルオフィスも紹介して欲しいのですが、お願い出来ますか?
JUST FIT OFFICEでは10名以上の企業を対象に専任のコンシェルジュがあなたに合ったレンタルオフィスを紹介しています。
詳しくはこちらご確認ください。











