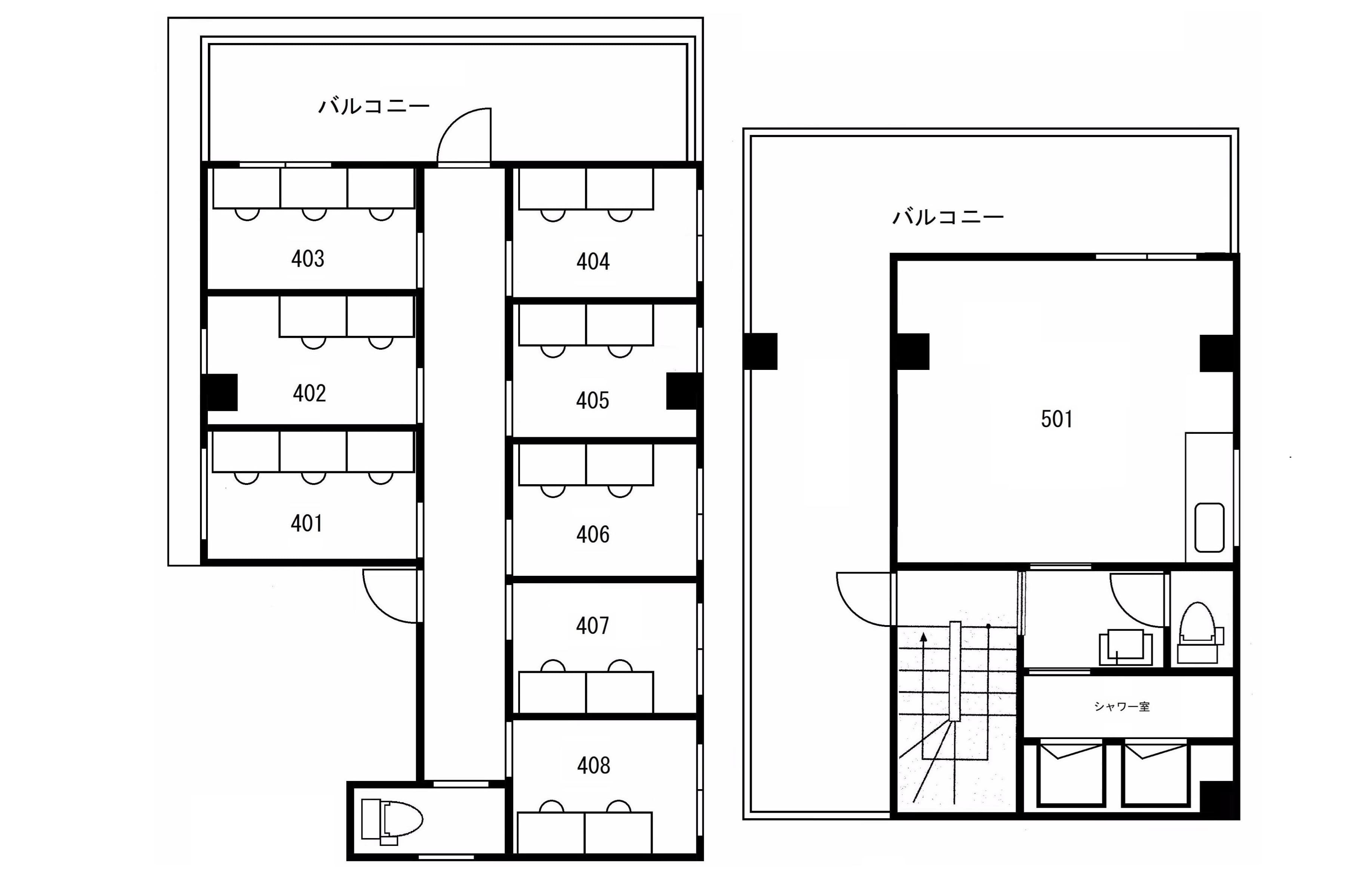
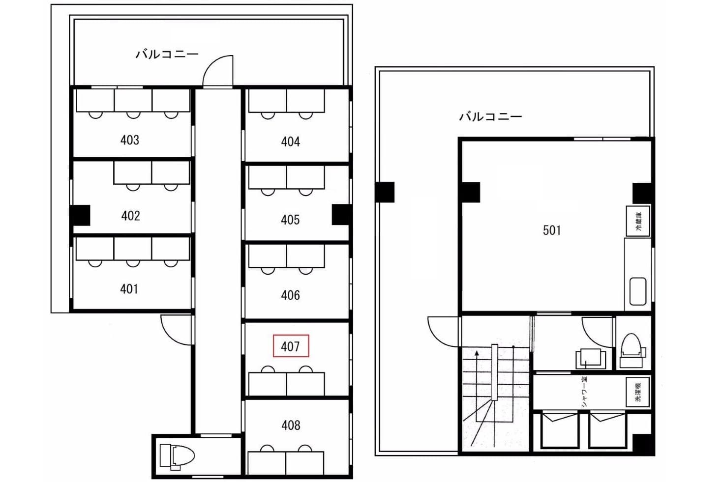
個室
入居費用・専有スペース
月額費用
税込99,025円/月
税別90,023円/月
初回支払額
税込297,075円/月
税別270,069円/月
入居可能時期
2026年2月頃
許容人数
3人
面積
6m²
この区画の特徴とおすすめポイント
1~2名様まで入居可能な完全個室です。
※最新の空室状況はお問い合わせください。※類似部屋を掲載している場合があります。
設備・条件
※バーチャルオフィスには適用されない場合がございます。
契約
契約種別
賃貸借契約
契約期間
その他
法人登記
可
期間内解約
その他
共有スペース・設備
ネットワーキング
ー
給湯室
シンク、電子レンジ
打ち合わせスペース(オープン)
ー
複合機
ー
郵便受け
エントランス設置
駐輪場
ー
駐車場
ー
共用Wi-Fi
無料
ドリンクサービス
ー
ゴミ収集
屋外ゴミ置き場
ペット
ー
シャワー
無料
TELブース
ー
ロッカー
ー
宅配ロッカー
ー
家具付き
あり
ゲスト同伴(共有ラウンジ)
可能
利用時間(共有ラウンジ)
ー
会議室
ー
インターネット
あり(Wi-Fi)
窓付き
窓あり
利用人数制限
席数以上の人数利用可
利用時間
24時間
掃除
ー
セキュリティ
入退出管理
暗証番号
受付
ー
警備
無人システム





















