


+20
Private Office
Recruiting sections 【3 sections】
Private Office
- Monthly Cost
- components.cards.roomDetail.includingTax35,750yen/month
- Available Move-in Date
- 即日可能
- Maximum Capacity
- Capacity1persons
Private Office
- Monthly Cost
- components.cards.roomDetail.includingTax41,800yen/month
- Available Move-in Date
- 2024年7月1日より
- Maximum Capacity
- Capacity1persons
Private Office
- Monthly Cost
- components.cards.roomDetail.includingTax41,800yen/month
- Available Move-in Date
- 即日可能
- Maximum Capacity
- Capacity1persons
Features and recommended points of this rental office
リゾフィスプラス(PLUS)本厚木駅前は、湘南地域でレンタルオフィスを展開しているリゾフィスの本厚木駅前拠点です。本厚木駅が徒歩1分圏内にある好立地ホテル、厚木シティホテルの中にあります。1~3名用の少人数のお部屋を提供しているため、リモートワークや起業をお考えの方にピッタリな空間となるでしょう。共用部には、ラウンジやTELブース、複合機などの充実した設備が整っています。ドリンクサービスも利用可能でコーヒーや紅茶など様々なドリンクが楽しめるのも特徴の1つです。また、フロントにはホテルスタッフが24時間常駐しているため、セキュリティ面でも安心して仕事が行えます。その他にも住所利用や法人登記、ポスト利用などのサービスもあり、機能性に優れたオフィスとなっています。興味のある方はお気軽にお問合せ下さい。
app.buildings.id.ratingBySortPoint.title
app.buildings.id.ratingBySortPoint.cautionEquipment and Conditions
※ Not applicable to virtual offices.
契約
契約種別
施設利用契約
契約期間
プランによる
法人登記
可
期間内解約
その他
共有スペース・設備
ネットワーキング
あり
給湯室
ー
打ち合わせスペース(オープン)
あり
複合機
有料
郵便受け
エントランス設置
駐輪場
ー
駐車場
ー
共用Wi-Fi
無料
ドリンクサービス
無料
ゴミ収集
共通ゴミ箱
ペット
ー
シャワー
ー
TELブース
あり
ロッカー
ー
宅配ロッカー
ー
ゲスト同伴(共有ラウンジ)
可能
利用時間(共有ラウンジ)
24時間
会議室
ー
セキュリティ
入退出管理
鍵
受付
ー
警備
ー
Office Photos
Exterior Photos

外観_本厚木駅から徒歩1分の厚木シティホテル2階にオフィスがあります。 
外観_お客様を招く際にも分かり易い、視認性の高い物件です。 
IMG_20210701_141412 
外観_受付。受付には24時間、ホテルスタッフが常駐しています。
Shared Space Photos

20250523_021328808_iOS 
共用部_ラウンジ。ラウンジはゲストの同伴可、24時間利用可能となっています。 
共用部_ドリンクコーナー。コーヒーや紅茶、その他さまざまなドリンクが無料で楽しめます。 
共有部_ラウンジ。開放的で安心感があります。
Private Space Photos

個室_1名用の個室もあり、リモートワークや独立をお考えの方にご利用いただけます。 
個室_お部屋の中では無料Wi-Fiが利用できます。 
個室_欄間オープン仕様の個室が利用できます。 
個室_あらかじめ家具は準備されているため、入居後すぐの稼働が可能です。
Other Photos

設備_郵便ポスト。住所利用・法人登記・ポスト利用などのサービスが利用できます。 
設備_複合機。ラウンジの横にある複合機(有料)もご利用いただけます。 
設備_TELブース。急な電話や会議の際も対応できるよう、TELブースも用意しています。 
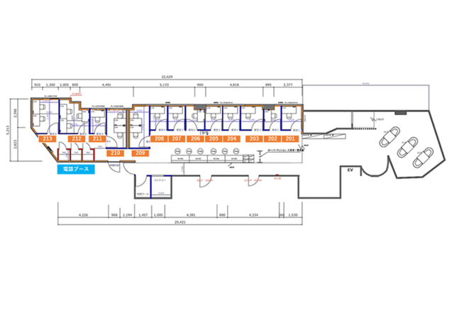
その他_フロアマップ。ホテル2F、施設内のフロア案内図です。
app.buildings.id.photos.nearKnowledge

近隣の駅_本厚木駅 (徒歩1分) 
近隣の飲食店_スターバックス コーヒー 本厚木店 (徒歩1分) 
近隣の駅_本厚木駅 (徒歩1分) 
近隣の駅_本厚木駅 (徒歩1分)
Map
本厚木 アクセスに優れた魅力の多い街
リゾフィスPLUS本厚木駅前のある本厚木は、本厚木駅を中心とした繁華街エリアです。本厚木駅では小田急小田原線を利用でき、新宿まで乗り換えなしでアクセス可能なように、東京への交通利便性に優れています。本厚木駅周辺には小田急本厚木ミロードやイオン厚木店といった商業施設が集まっており、ファッションから生活用品までそろえることが出来ます。また、エリア内には、自然が豊かな厚木中央公園や、水遊び場やアスレチック・ミニコートなどがある、ぼうさいの丘公園などの公園があります。その他にも厚木市子ども科学館のような施設もあるため、子供の遊び場としての人気も集めています。駅のアクセスの良さ、駅周辺の利便性、お出かけスポットが充実している点など、さまざまな魅力を持つエリアが本厚木です。
app.buildings.id.facilityComment
小田急線「本厚木駅」北口から徒歩1分の レンタルスペース「resoffice.PLUS本厚木駅前」です。 厚木シティホテル内にあり、1人用から3人用まで個室を13室ご用意しております(現在3人用の個室は埋まっております) 。ホテルスタッフが常駐しており24時間ご利用可能なので、女性のお客様も安心してご利用いただけます。 また、電話ブースやホテルラウンジ、会員のお客様はドリンクバーもフリーでご利用いただけますので、 ちょっと息抜きをしたい時などにどうぞ◎ 住所利用はもちろん、郵便ポストがあるので、 拠点としても活用していただけます。 住所を使って法人登記ができるので、会社設立も可能です◎ テレワークやフリーランス、スタートアップの会社様に 便利なレンタルスペースです。
Recruitment ended sections 【7 sections】
Private Office
- Monthly Cost
- components.cards.roomDetail.includingTax34,650yen/month
- Available Move-in Date
- 即日可能
- Maximum Capacity
- Capacity1persons
Private Office
- Monthly Cost
- components.cards.roomDetail.includingTax34,650yen/month
- Available Move-in Date
- 即日可能
- Maximum Capacity
- Capacity1persons
Private Office
- Monthly Cost
- components.cards.roomDetail.includingTax35,750yen/month
- Available Move-in Date
- 即日可能
- Maximum Capacity
- Capacity1persons
Private Office
- Monthly Cost
- components.cards.roomDetail.includingTax35,750yen/month
- Available Move-in Date
- 即日可能
- Maximum Capacity
- Capacity1persons
Private Office
- Monthly Cost
- components.cards.roomDetail.includingTax37,950yen/month
- Available Move-in Date
- 即日可能
- Maximum Capacity
- Capacity1persons
Private Office
- Monthly Cost
- components.cards.roomDetail.includingTax51,150yen/month
- Available Move-in Date
- 即日可能
- Maximum Capacity
- Capacity2persons
Private Office
- Monthly Cost
- components.cards.roomDetail.includingTax53,900yen/month
- Available Move-in Date
- 即日可能
- Maximum Capacity
- Capacity2persons
Frequently Asked Questions
I want to know the monthly rent and initial costs of リゾフィスプラス(PLUS)本厚木駅前.
JUST FIT OFFICE lists the rental fees and initial costs of リゾフィスプラス(PLUS)本厚木駅前.
I want to check the vacancy status of リゾフィスプラス(PLUS)本厚木駅前
JUST FIT OFFICE lists the available sections of リゾフィスプラス(PLUS)本厚木駅前.
I want to make an inquiry about リゾフィスプラス(PLUS)本厚木駅前
You can inquire about this rental office here.
If you prefer to call, please contact 050-5829-4070.
Can you introduce rental offices other than リゾフィスプラス(PLUS)本厚木駅前?
JUST FIT OFFICE introduces rental offices that suit you through a dedicated concierge for companies with 5 or more employees.
Please check here for details.











