


+6
Private Office
Features and recommended points of this rental office
リゾーン(Re:ZONE)昭和町01は、2021年10月に開業した個室レンタルオフィスです。御堂筋電の昭和町駅から徒歩1分、ターミナル駅である天王寺駅まで1駅の便利な立地です。昭和町EBISUビル4階にリゾーン(Re:ZONE)昭和町01があります。1~4名用の小型個室オフィスがあり、全て個別空調でオフィス家具・インターネット設備の完備されたプライベートオフィスです。フロアには男女別のトイレやミニキッチンが用意されており、契約者なら誰でも自由に利用できますが、スマートロック採用のため部外者が立入ることはありません。また、リゾーン(Re:ZONE)昭和町01の住所で会社登記や郵便物の受取が可能で、追加料金はかかりません。初期費用も入会金のみで、保証金や礼金の負担もありません。
app.buildings.id.ratingBySortPoint.title
app.buildings.id.ratingBySortPoint.cautionEquipment and Conditions
※ Not applicable to virtual offices.
契約
契約種別
定期賃貸借契約
契約期間
その他
法人登記
可
期間内解約
2か月前予告
共有スペース・設備
ネットワーキング
ー
給湯室
シンク、電子レンジ
打ち合わせスペース(オープン)
ー
複合機
ー
郵便受け
エントランス設置
駐輪場
ー
駐車場
ー
共用Wi-Fi
無料
ドリンクサービス
無料
ゴミ収集
屋内ゴミ置き場
ペット
ー
シャワー
ー
TELブース
ー
ロッカー
ー
宅配ロッカー
ー
ゲスト同伴(共有ラウンジ)
可能
利用時間(共有ラウンジ)
ー
会議室
ー
セキュリティ
入退出管理
カードキー
受付
ー
警備
無人システム
Office Photos
Exterior Photos

オフィスエントランス_スマートロックを設置しており、利用者以外が自由に出入りすることはできません。
Shared Space Photos

共用部_ミニキッチン。ご契約者様なら、誰でも自由に利用することができます。
Private Space Photos

専有部_個室。完全個室・個別空調・家具つきのプライベートオフィスです。
Other Photos

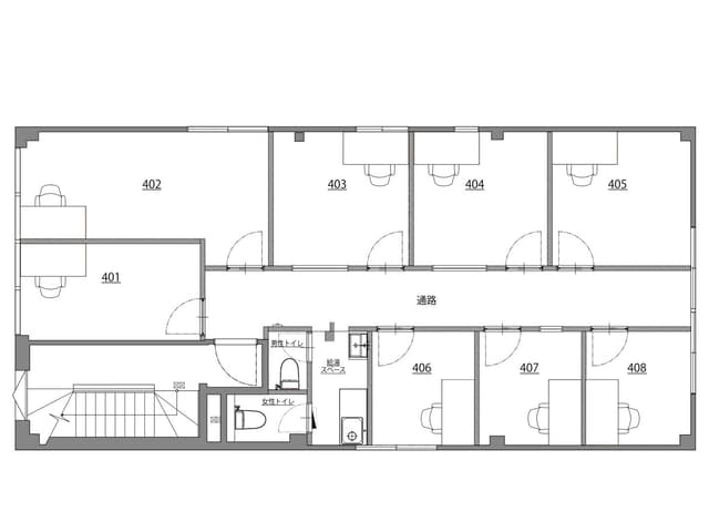
フロア図_昭和町EBISUビルの4階がオフィスフロアです。 
共用設備_ドリンクサーバー。ご契約者様は無料でご利用いただけます。
Map
昭和町 あべのハルカスを望むレトロな文教地区
リゾーン(Re:ZONE)昭和町01のある昭和町エリアは、阿倍野区の中心に位置する地区で、抜群のアクセスを誇りながらも落ち着いた街並みの広がる、閑静な住宅街です。名前の通り、昭和以来のレトロな街並みが広がり、ランドマークとして知られるあべのハルカスも徒歩圏内です。進学校がある文教地区として知られており、子どもの教育に熱心なファミリー層からも支持されています。ターミナル駅・高級住宅街として知られる天王寺からは大阪メトロ・御堂筋線で一駅南にあたり、徒歩でもアクセス可能です。昭和町駅は大阪メトロ・御堂筋線が乗り入れており、なんば駅まで乗り換えなしで10分以内、梅田駅まで20分以内でアクセスできることから、ベッドタウンとして人気があります。
app.buildings.id.facilityComment
Recruitment ended sections 【2 sections】
Private Office
- Monthly Cost
- components.cards.roomDetail.includingTax43,340yen/month
- Available Move-in Date
- 審査完了後、即日
- Maximum Capacity
- Capacity2persons
Private Office
- Monthly Cost
- components.cards.roomDetail.includingTax63,690yen/month
- Available Move-in Date
- 2023年10月上旬
- Maximum Capacity
- Capacity4persons
Frequently Asked Questions
I want to know the monthly rent and initial costs of リゾーン(Re:ZONE)昭和町01.
JUST FIT OFFICE lists the rental fees and initial costs of リゾーン(Re:ZONE)昭和町01.
I want to check the vacancy status of リゾーン(Re:ZONE)昭和町01
JUST FIT OFFICE lists the available sections of リゾーン(Re:ZONE)昭和町01.
I want to make an inquiry about リゾーン(Re:ZONE)昭和町01
You can inquire about this rental office here.
If you prefer to call, please contact JUST FIT OFFICE Reception Center (03-6555-3404 ).
Can you introduce rental offices other than リゾーン(Re:ZONE)昭和町01?
JUST FIT OFFICE introduces rental offices that suit you through a dedicated concierge for companies with 5 or more employees.
Please check here for details.





