


+12
Private Office
Features and recommended points of this rental office
ザバトン(THE BATON)南青山は、地下1階地上5階建ての6フロアからなるレンタルオフィスです。外苑前駅から徒歩4分、表参道駅から徒歩8分の場所に立地してます。1フロアすべてを専有部として提供していて、オフィスやショールーム、スクールやスタジオ等のサービス店舗などのさまざまな入居形態に対応できるオフィスとなっています。各階の専有部はシンプルな内装と必要最小限のインフラ設備が備えられ、自由に内装をカスタマイズできる空間となっています。目的や用途に合わせて自由に内装をアレンジすることが出来ます。また、内装工事を行わず、家具を設置するだけでも映えるようなデザイン性の高さが魅力的です。シンプルな内装により、解体費等の初期費用が抑えられます。
app.buildings.id.ratingBySortPoint.title
app.buildings.id.ratingBySortPoint.cautionEquipment and Conditions
※ Not applicable to virtual offices.
契約
契約種別
賃貸借契約
契約期間
2年契約
法人登記
ー
期間内解約
その他
共有スペース・設備
ネットワーキング
ー
給湯室
シンク、電子レンジ
打ち合わせスペース(オープン)
ー
複合機
有料
郵便受け
エントランス設置
駐輪場
ー
駐車場
ー
共用Wi-Fi
ー
ドリンクサービス
ー
ゴミ収集
屋外ゴミ置き場
ペット
ー
シャワー
ー
TELブース
ー
ロッカー
ー
宅配ロッカー
ー
ゲスト同伴(共有ラウンジ)
可能
利用時間(共有ラウンジ)
24時間
会議室
ー
セキュリティ
入退出管理
カードキー
受付
ー
警備
ー
Office Photos
Exterior Photos

建物外観_外苑西通りに面したビルです。 
建物外観_外苑前駅・徒歩4分の場所にあるオフィスです。 
エントランス_こだわりの内装塗装や空調等が備えられています。 
エントランス_24時間自由に入退館できます。
Shared Space Photos

共用部_トイレ。 
共用部_トイレ。
Private Space Photos

専有部_オフィス。インテリアやオフィス家具を設置でき、一から自由にオフィス空間を作ることができます。 
専有部_オフィス。1フロア1テナントでサービス店舗やショールームフロアとしてもお使いいただけます。 
専有部_オフィス。内装も自由に変えることができます。
Other Photos

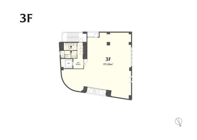
その他_全体フロアマップ。 
THE_BATON_フロア図面_3F
app.buildings.id.photos.nearKnowledge

近隣の郵便局_外苑前郵便局(徒歩2分) 
近隣の銀行_みずほ銀行 青山支店 (徒歩9分) 
近隣のカフェ_スターバックス 南青山2丁目店(徒歩3分) 
近隣のコンビニ_セブンイレブン 北青山青山通り店(徒歩2分)
Map
南青山 最先端の人気エリア
ザバトン(THE BATON)南青山のある南青山は、「根津美術館」や「岡本太郎記念館美術館」などの文化施設が点在し、「骨董通り」では中心に世界的に有名なブティックやブランド店が並び、注目を集め続ける日本有数の人気エリアです。都内を代表する幹線道路のひとつである青山通りに面していることから、交通利便性も抜群です。そんな青山通りに沿うような形で東京メトロ銀座線と半蔵門線の複数の駅が位置しています。特に、渋谷、銀座、浅草、大手町、赤坂、日比谷へのアクセスが良く、都内でのお出かけに便利な交通網が備わっています。都心のど真ん中のエリアでありながら、明治神宮外苑のイチョウ並木や聖徳記念絵画館の紅葉などの自然を感じられる点も魅力的です。
app.buildings.id.facilityComment
これまでとこれからを繋ぐ場所「THE BATON」
日本を代表するファッションやカルチャーの発信地として、クリエイティブで感度の高い人々が集まる街「南青山」
流行の最先端と豊かな自然が融合するこの街は、常に進化を続け、さらなる魅力ある街へと成長が期待されているエリアです。南青山三丁目交差点至近に位置する当施設は、以前ホテルとして利用されていたビル一棟をリノベーション。歴史や文化をつなぎ、南青山の新たな発信地として「これまでとこれからを繋ぐ場所」をコンセプトとした複合施設。
Frequently Asked Questions
I want to know the monthly rent and initial costs of ザ バトン(THE BATON)南青山.
JUST FIT OFFICE lists the rental fees and initial costs of ザ バトン(THE BATON)南青山.
I want to check the vacancy status of ザ バトン(THE BATON)南青山
JUST FIT OFFICE lists the available sections of ザ バトン(THE BATON)南青山.
I want to make an inquiry about ザ バトン(THE BATON)南青山
You can inquire about this rental office here.
If you prefer to call, please contact JUST FIT OFFICE Reception Center (03-6555-3404 ).
Can you introduce rental offices other than ザ バトン(THE BATON)南青山?
JUST FIT OFFICE introduces rental offices that suit you through a dedicated concierge for companies with 5 or more employees.
Please check here for details.











