


+18
Private Office
Features and recommended points of this rental office
カボ上原(CABO uehara)は、代々木上原駅徒歩30秒の場所に位置するレンタルオフィスです。窓からは代々木公園を望むことができ、緑豊かな自然に囲まれたロケーションが特徴的なオフィスです。専用の個室が利用できるプランを提供しており、数名用のスモールサイズから20〜30名規模のサイズまでフレキシブルに活用できるスペースをご用意しています。オフィス内はモダンなインテリアや内装が施され、落ち着いた雰囲気で仕事ができる環境が整っています。さらに、フリードリンクサービスや高速インターネット接続、会議室の利用が可能など、ビジネスに必要な機能が揃っています。また、24時間体制のセキュリティシステムを導入しており、安心してご利用頂けます。
app.buildings.id.ratingBySortPoint.title
app.buildings.id.ratingBySortPoint.cautionEquipment and Conditions
※ Not applicable to virtual offices.
契約
契約種別
定期賃貸借契約
契約期間
プランによる
法人登記
可
期間内解約
その他
共有スペース・設備
ネットワーキング
あり
給湯室
ー
打ち合わせスペース(オープン)
ー
複合機
ー
郵便受け
エントランス設置
駐輪場
有料
駐車場
ー
共用Wi-Fi
有料
ドリンクサービス
ー
ゴミ収集
屋内ゴミ置き場
ペット
ー
シャワー
ー
TELブース
ー
ロッカー
ー
宅配ロッカー
あり
ゲスト同伴(共有ラウンジ)
ー
利用時間(共有ラウンジ)
24時間
会議室
プランによる
セキュリティ
入退出管理
カードキー
受付
ー
警備
無人システム
Office Photos
Exterior Photos

建物外観_代々木上原駅徒歩30秒の場所にあるオフィスです。 エントランス_無人のセキュリティシステムと防犯カメラが設置されておりセキュリティ面も安心です。 エントランス_24時間自由に入退館できます。 エントランス_専有利用できるポストを設置しています。
Shared Space Photos

ルーフバルコニーからの景色 共有部_通路。24時間体制の防犯システムが設けられています。
Private Space Photos
専有部_個室。無料で登記・住所利用ができます。 専有部_個室。数名用の小規模なオフィスから20名以上で利用できるオフィスまで幅広い区画を提供しています。 専有部_個室。建物に入っている光回線を利用できます。(要プロパイダ契約) 専有部_個室。24時間利用可能な完全個室のオフィスです。
Other Photos

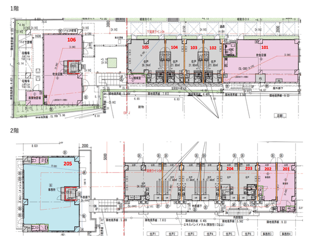
その他_1・2Fフロアマップ。 
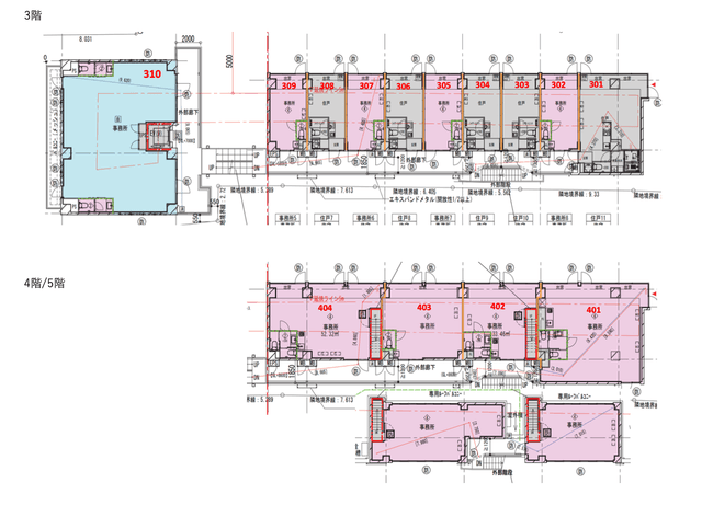
その他_3・4・5Fフロアマップ。 
その他_ルーフバルコニーからの眺望 専有部_トイレ。各オフィス内に御手洗いを設置しています。
Map
代々木上原 自然に囲まれた街
カボ上原(CABO uehara)のある代々木上原は、東京都渋谷区にある住宅街で、都心にありながら落ち着いた雰囲気が魅力的なエリアです。代々木公園や明治神宮が近くにあり、自然に囲まれた環境でリラックスしながら働くことが出来ます。そんな当エリアは、古くからある商店街や、オシャレなカフェや雑貨店などが並ぶ商店街など、昔ながらの雰囲気が感じられる町並みが広がっています。特に、代々木公園側の商店街は昔ながらの商店街が残っており、地元の人々が集まる場所として賑わいを見せています。最寄りの代々木上原駅からはJR山手線や地下鉄千代田線が利用でき、渋谷や新宿、池袋などへのアクセスも便利です。また、バス路線も多く、都内各所への移動もスムーズに行えます。
app.buildings.id.facilityComment
【建物名称の由来】
『CABO』という施設名は、「結合(co)と発散(ab)の循環」を意味しており、場を通して生まれる”つながり”が外へと波及していく力となり、またそこに新たな人を惹き付けていく。そうした”関係の循環”を表現した建物です。
【コンセプト】
職・住・遊の融合を基本コンセプトとする同施設は、グランドレベル(1F)には飲食店やショップが入り、その上階(2F〜5F)は、さまざまな用途を選択できるオフィス区画とミニマルなライフスタイルに適応したレジデンス区画が混ざったミクストユースのフロア構成となっています。建物の顔となる区画には、日々の生活に寄り添う上質なコーヒーやカクテル、食事や会話を代々木上原の地で提供してきた『No.』が「生活空間」としてのCafe&Barと「仕事空間」としてのデザインオフィスが融合した場を提供します。グランドレベルの奥の区画には、日本のレストランシーンに新たなスタイルを提案し話題となった目黒の人気レストラン『kabi』と兜町の姉妹店『caveman』から独立するチームによる気鋭のレストラン&ワインバー『Ukiyo』が出店。成熟しつつある代々木上原の飲食シーンに、新たな刺激と変化を起こしていくことが期待されます。
【独自のサービス】
入居者限定のメンバーズカードの発行を予定しており、1F店舗での割引など入居者だけのメリット創出を実装予定です。
Frequently Asked Questions
I want to know the monthly rent and initial costs of カボ上原(CABO uehara).
JUST FIT OFFICE lists the rental fees and initial costs of カボ上原(CABO uehara).
I want to check the vacancy status of カボ上原(CABO uehara)
JUST FIT OFFICE lists the available sections of カボ上原(CABO uehara).
I want to make an inquiry about カボ上原(CABO uehara)
You can inquire about this rental office here.
If you prefer to call, please contact JUST FIT OFFICE Reception Center (03-6555-3404 ).
Can you introduce rental offices other than カボ上原(CABO uehara)?
JUST FIT OFFICE introduces rental offices that suit you through a dedicated concierge for companies with 5 or more employees.
Please check here for details.



