


+20
Private Office
Completion
- 2022年10月
Address
- 東京都新宿区市谷田町3-14
Nearest Station
市ケ谷駅(徒歩5分)
市ヶ谷駅(徒歩5分)
飯田橋駅(徒歩7分)
牛込神楽坂駅(徒歩10分)
神楽坂駅(徒歩14分)
Features and recommended points of this rental office
市ヶ谷ガーデンテラスは、市ヶ谷駅から徒歩5分の場所に位置するレンタルオフィスです。屋上テラスからは市ヶ谷・飯田橋の外濠の景色が一望できます。4名~20名の個室プランを展開しており、利用人数・用途に合わせてプランを選ぶことができます。共用設備として、ポストや会議室、複合機(有料)などがあります。会議室は事前に専用サイトから予約することで無料で利用できます。また、会議室内に設置してあるモニターも使用できます。当オフィスに入居された方は、徒歩1分圏内の『Cross Point市ヶ谷1』もご利用いただけます。(Cross Point市ヶ谷1には、カフェスペース、ドリンクサービス、ネットワーキング、会議室、電話ブース、ロッカー、受付があります。)
app.buildings.id.ratingBySortPoint.title
app.buildings.id.ratingBySortPoint.cautionEquipment and Conditions
※ Not applicable to virtual offices.
契約
契約種別
定期賃貸借契約
契約期間
2年契約
法人登記
可
期間内解約
その他
共有スペース・設備
ネットワーキング
ー
給湯室
シンクのみ
打ち合わせスペース(オープン)
ー
複合機
有料
郵便受け
エントランス設置
駐輪場
ー
駐車場
ー
共用Wi-Fi
無料
ドリンクサービス
ー
ゴミ収集
共通ゴミ箱
ペット
ー
シャワー
無料
TELブース
ー
ロッカー
ー
宅配ロッカー
ー
ゲスト同伴(共有ラウンジ)
可能
利用時間(共有ラウンジ)
時間制限
会議室
有料
セキュリティ
入退出管理
カードキー
受付
ー
警備
無人システム
Office Photos
Exterior Photos

外観_市ヶ谷駅から徒歩5分の位置にあります。 
外観_ビル裏手。飯田橋駅からも徒歩7分でアクセス可能です。 
外観_入口。オフィスはビルの1F~9Fにあります。 
外観_エントランス。セキュリティシステムを導入しています。
Shared Space Photos

共用部_3階会議室。事前予約制で無料で利用可能です。 
共用部_3階水回り。シンクの利用ができます。 
共用部_3階廊下。3F~9Fの個室は家具付きです。 
設備_シャワー室。7F・9FのSOHO区画ご入居の方はシャワー室も利用できます。
Private Space Photos

2F個室_20名用で、家具なしの個室タイプです。 
5F個室_7名用個室です。飯田橋と市ヶ谷にあるCross Pointの利用も可能です。 
3F個室_4名用で、窓付き・家具付きです。 
7F-9F個室_7Fと9Fの個室は7名用のSOHOタイプです。シャワー室も利用できます。
Other Photos

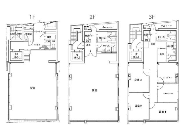
その他_1~3Fのフロアマップ。 
その他_4~9Fのフロアマップ。 
設備_ポスト。ビル入口に設置しています。 
設備_コピー機。3Fに設置してあり、有料で利用可能です。
app.buildings.id.photos.nearKnowledge

近隣の郵便局_新宿保険会館内郵便局 (徒歩6分) 
近隣のコンビニ_ファミリーマート 神楽坂一丁目店 (徒歩3分) 
近隣の銀行_三菱UFJ銀行 飯田橋支店 (徒歩8分) 
近隣のカフェ_スターバックスコーヒー 神楽坂下店 (徒歩6分)
Map
市ヶ谷 濠を囲むオフィスの街
市ヶ谷ガーデンテラスのある市ヶ谷は、千代田区・新宿区の境に広がるオフィス街です。同じくオフィスが多い飯田橋や麹町と近く、ビジネスマンが多くいるエリアです。JR総武線、都営新宿線、東京メトロ南北線・有楽町線と複数の路線を利用できるため、都内のどのエリアへもアクセス良好で、新宿や渋谷、池袋、大手町といった主要駅へも20~30分でアクセス可能です。外濠の内側にはオフィス以外にも大学が多くあります。市ヶ谷から麹町のエリアは高級住宅街としても知られています。飲食店も多くあり、近隣の神楽坂まで有名店が立ち並んでいます。外濠通りには桜の木があり、春には散歩道としても人気です。
app.buildings.id.facilityComment
Frequently Asked Questions
I want to know the monthly rent and initial costs of 市ヶ谷ガーデンテラス.
JUST FIT OFFICE lists the rental fees and initial costs of 市ヶ谷ガーデンテラス.
I want to check the vacancy status of 市ヶ谷ガーデンテラス
JUST FIT OFFICE lists the available sections of 市ヶ谷ガーデンテラス.
I want to make an inquiry about 市ヶ谷ガーデンテラス
You can inquire about this rental office here.
If you prefer to call, please contact JUST FIT OFFICE Reception Center (03-6555-3404 ).
Can you introduce rental offices other than 市ヶ谷ガーデンテラス?
JUST FIT OFFICE introduces rental offices that suit you through a dedicated concierge for companies with 5 or more employees.
Please check here for details.










