


+15
Private Office
Dedicated Desk
Features and recommended points of this rental office
入谷ロッジは東京メトロ日比谷線入谷駅から徒歩7分のところにある、秘密基地のような雰囲気のシェアオフィスです。オフィスの周辺は落ち着いており集中して作業することができます。異業種交流会や、模型作成スペースなどこのオフィスならではの魅力がたくさんあります。普段は建築関係のお仕事をしている方が多いのですが異業種交流会の際では税理士の方などと交流する機会があるので、仕事の輪や交流の輪が広がります。模型作成スペースは建築系の方でオフィスを探している人には特に魅力的なポイントです。大量の建築関連書籍や資料もあるため、刺激を得ることができます。無料のミーティングスペースや電子レンジ、シンク、複合機など設備も充実しており快適なオフィスライフを送ることができます。
app.buildings.id.ratingBySortPoint.title
app.buildings.id.ratingBySortPoint.cautionEquipment and Conditions
※ Not applicable to virtual offices.
契約
契約種別
施設利用契約
契約期間
1か月契約
法人登記
可
期間内解約
2か月前予告
共有スペース・設備
ネットワーキング
あり
給湯室
シンク、電子レンジ
打ち合わせスペース(オープン)
あり
複合機
有料
郵便受け
エントランス設置
駐輪場
ー
駐車場
ー
共用Wi-Fi
無料
ドリンクサービス
有料
ゴミ収集
共通ゴミ箱
ペット
ー
シャワー
ー
TELブース
ー
ロッカー
ー
宅配ロッカー
ー
ゲスト同伴(共有ラウンジ)
ー
利用時間(共有ラウンジ)
時間制限
会議室
ー
セキュリティ
入退出管理
暗証番号
受付
ー
警備
ー
Office Photos
Exterior Photos

外観_茶色いタイルの落ち着いた優しい雰囲気の外観です。 
外観_建物入り口部分の写真です。
Shared Space Photos

内観_シェアオフィス全体の写真です。広々としたスペースがあり、快適なオフィスライフが送れます。 
内観_模型作成スペースです。本棚には建築関連の書籍が並んでいます。建築関連、モノづくりでオフィスを探している方に嬉しいスペースです。 
会議室_無料でご利用頂ける会議室です。席数も十分にあり便利です。 
内観_清潔で広々としたお手洗いです。
Private Space Photos

専用デスク1_専用デスク1は書斎のような落ち着いた雰囲気なので、集中して作業ができます。 
専用デスク2_こちらの専用デスクは棚もあり荷物や、書籍の置き場に困りません。 
シェアスペース_4㎡程の広さのシェアスペースです。ご入居者様の用途に合わせてご利用頂けます。 
ロフト_15㎡の広さがあるロフトです。ロフトなので天井は低めですが様々な用途がありそうです。
Other Photos

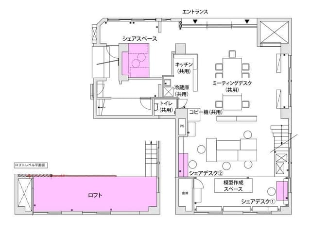
見取り図
app.buildings.id.photos.nearKnowledge

最寄り駅_最寄り駅は入谷駅です。下町情緒あふれる落ち着いた街です。 
周辺の郵便局_徒歩圏内に台東入谷郵便局があります。 
周辺のコンビニ_徒歩1分ほどのところに、ミニストップ入谷2丁目店があります。 
周辺の飲食店_オフィス周辺には飲食店も充実しています。
Map
入谷 下町の雰囲気も残る住宅街
入谷は、江戸時代の名残で神社仏閣が多く歴史的にも由緒ある地域です。現在はマンションや一軒家などが立ち並び住宅地としての側面が強くなってきていますが、住宅地の中にも神社仏閣が点在しています。入谷は交通の利便性も非常に高いエリアです。入谷駅には東京メトロ日比谷線が通っており、上野駅まで2分でアクセスできます。恵比寿、六本木、銀座、秋葉原など主要エリアにも乗り換えなしでのアクセスが可能です。また、少し歩けば鶯谷駅もあるので、山手線も利用できます。
app.buildings.id.facilityComment
まるで秘密基地のような、アジトのようなシェアオフィスです。印刷工場だった建物1階。天井高は約4.5mあります。
まとめて借りていた方が退去したため募集するのは4区画。
一番広いのはロフト部分。天井がやや低めですが、部屋全体を見渡せるので、窮屈な感じはありません。次にキッチンの裏側。窮屈ですが2名分のデスクを置くことも可能です。あとはロフトの下にあるデスク2席。金額も異なりますので、お好きな場所を選んでもらえたら。
場所は、下町な雰囲気がある台東区千束。物件は少し駅から離れているところにあるので、周りは静かです。
シェアするのは建築関係の方々。それもあって、模型をつくる作業台、建築関係の資料もシェアしています。ちなみに法人の登記も相談。建築関係で独立をお考えの方にうれしいことが多そうです。
仕事の連携など、シェアならではのオイシさを求めている方がマッチしそう。気になる方はぜひ。
Recruitment ended sections 【4 sections】
Dedicated Desk
- Monthly Cost
- components.cards.roomDetail.includingTax32,000yen/month
- Available Move-in Date
- 即日可能
- Maximum Capacity
- Capacity1persons
Dedicated Desk
- Monthly Cost
- components.cards.roomDetail.includingTax43,000yen/month
- Available Move-in Date
- 即日可能
- Maximum Capacity
- Capacity1persons
Dedicated Desk
- Monthly Cost
- components.cards.roomDetail.includingTax48,500yen/month
- Available Move-in Date
- 即日可能
- Maximum Capacity
- Capacity2persons
Private Office
- Monthly Cost
- components.cards.roomDetail.includingTax65,000yen/month
- Available Move-in Date
- 即日可能
- Maximum Capacity
- Capacity3persons
Frequently Asked Questions
I want to know the monthly rent and initial costs of 入谷ロッジ.
JUST FIT OFFICE lists the rental fees and initial costs of 入谷ロッジ.
I want to check the vacancy status of 入谷ロッジ
JUST FIT OFFICE lists the available sections of 入谷ロッジ.
I want to make an inquiry about 入谷ロッジ
You can inquire about this rental office here.
If you prefer to call, please contact JUST FIT OFFICE Reception Center (03-6555-3404 ).
Can you introduce rental offices other than 入谷ロッジ?
JUST FIT OFFICE introduces rental offices that suit you through a dedicated concierge for companies with 5 or more employees.
Please check here for details.





