
+17
Private Office
Free Desk
Features and recommended points of this rental office
グラスプラス高輪ANNEX UPオフィスは高輪台駅から徒歩1分に位置するレンタルオフィスです。オフィスは作業スペースとしてぴったりなフリーデスクをご利用出来るコワーキングデスクプランや、オフィスの拠点やサテライトオフィス・支店としても利用できる個室プランが用意されています。個室プランではすべてのお部屋が完全個室となっているため、プライバシーが確保された空間で自身のビジネスに取り組むことが出来ます。また、デスクやチェアが備え付けになっており、オフィス内には会議室や複合機、休憩時や打ち合わせの際にご利用できる共用ラウンジ、ドリンクサーバーなどの共用スペース・設備も用意されているため、入居時の初期費用やランニングコストを抑えて働くことが出来ます。
グラスプラス高輪ANNEX UPオフィスに興味を持たれた方はお気軽にお問合せください。
app.buildings.id.ratingBySortPoint.title
app.buildings.id.ratingBySortPoint.cautionEquipment and Conditions
※ Not applicable to virtual offices.
契約
契約種別
施設利用契約
契約期間
プランによる
法人登記
可
期間内解約
1か月前予告
共有スペース・設備
ネットワーキング
あり
給湯室
ー
打ち合わせスペース(オープン)
あり
複合機
有料
郵便受け
エントランス設置
駐輪場
ー
駐車場
ー
共用Wi-Fi
無料
ドリンクサービス
無料
ゴミ収集
共通ゴミ箱
ペット
ー
シャワー
ー
TELブース
ー
ロッカー
ー
宅配ロッカー
あり
ゲスト同伴(共有ラウンジ)
ー
利用時間(共有ラウンジ)
24時間
会議室
ー
セキュリティ
入退出管理
カードキー
受付
ー
警備
無人システム
Office Photos
Exterior Photos
外観_オフィスは高輪台駅から徒歩2分の好ロケーションです。 外観_エントランス。ビルエントランスにはオフィスへ続く階段が設置されています。
Shared Space Photos

共用部_ラウンジ。休憩時やちょっとした打ち合わせの際に利用できるフリースペースです。 共用部_コワーキングスペース。入居者様の働き方に合わせてご利用可能なフリーデスクプランもご用意しています。 共用部_コワーキングスペース。各席にはデスクライトが設置されています。 
共用部_会議室。来客時の打ち合わせから公演・セミナー・イベント等、様々な用途でお使いいただけます。
Private Space Photos
個室_集中して作業に取り組める完全個室です。1名様からご利用可能なスペースが用意されています。 個室_お部屋には個別電源が設置されています。 
個室_2名様用の完全個室です。お部屋は24時間いつでもご利用になれます。
Other Photos
設備_複合機。オフィスには備え付けの複合機が用意されており、初期費用・ランニングコストを抑えることが出来ます。 設備_コーヒーサーバー。自由にお使いいただけるドリンクサーバーが設置されています。 
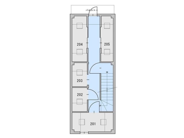
その他_2Fフロアマップ。 
その他_3Fフロアマップ。
Map
app.buildings.id.facilityComment
Recruitment ended sections 【6 sections】
Free Desk
- Monthly Cost
- components.cards.roomDetail.includingTax27,500yen/month
- Available Move-in Date
- 即日可能
- Maximum Capacity
- Capacity1persons
Private Office
- Monthly Cost
- components.cards.roomDetail.includingTax39,600yen/month
- Available Move-in Date
- 即日可能
- Maximum Capacity
- Capacity1persons
Private Office
- Monthly Cost
- components.cards.roomDetail.includingTax41,800yen/month
- Available Move-in Date
- 即日可能
- Maximum Capacity
- Capacity1persons
Private Office
- Monthly Cost
- components.cards.roomDetail.includingTax66,000yen/month
- Available Move-in Date
- 即日可能
- Maximum Capacity
- Capacity2persons
Private Office
- Monthly Cost
- components.cards.roomDetail.includingTax72,600yen/month
- Available Move-in Date
- 即日可能
- Maximum Capacity
- Capacity2persons
Private Office
- Monthly Cost
- components.cards.roomDetail.includingTax83,600yen/month
- Available Move-in Date
- 即日可能
- Maximum Capacity
- Capacity2persons
Frequently Asked Questions
I want to know the monthly rent and initial costs of 【閉店】グラスプラス高輪ANNEX UPオフィス.
JUST FIT OFFICE lists the rental fees and initial costs of 【閉店】グラスプラス高輪ANNEX UPオフィス.
I want to check the vacancy status of 【閉店】グラスプラス高輪ANNEX UPオフィス
JUST FIT OFFICE lists the available sections of 【閉店】グラスプラス高輪ANNEX UPオフィス.
I want to make an inquiry about 【閉店】グラスプラス高輪ANNEX UPオフィス
You can inquire about this rental office here.
If you prefer to call, please contact JUST FIT OFFICE Reception Center (03-6555-3404 ).
Can you introduce rental offices other than 【閉店】グラスプラス高輪ANNEX UPオフィス?
JUST FIT OFFICE introduces rental offices that suit you through a dedicated concierge for companies with 5 or more employees.
Please check here for details.













