


+17
Private Office
Free Desk
Features and recommended points of this rental office
グランエス(Gran_S)東戸塚はワンランク上の上質な空間を提供するプライベートオフィスです。東戸塚駅にほど近い場所にあります。オフィスには、ビジネスコンシェルジュ・高品質のセキュリティ体制・メンバーシップ制の3つの特徴があります。ビジネスコンシェルジュは、入居者様が行政書士や社会保険労務士といった専門家に経営相談をすることが出来るサービスです。高品質のセキュリティ体制に関しては、個室ごとに独立したネットワークを用意しています。個室自体も防音性を高めた仕様になっているため、安心してご利用いただけます。メンバーシップ制に関しては、会員制のオフィスとなっているため、通常のレンタルオフィスに比べ、入居者様同士でのコミュニケーションを活発に行うことが可能となっています。グランエス(Gran_S)東戸塚のハイグレードな環境で新しい働き方を実現させてみませんか?
app.buildings.id.ratingBySortPoint.title
app.buildings.id.ratingBySortPoint.cautionEquipment and Conditions
※ Not applicable to virtual offices.
契約
契約種別
施設利用契約
契約期間
2年契約
法人登記
有料可
期間内解約
その他
共有スペース・設備
ネットワーキング
あり
給湯室
シンク、電子レンジ
打ち合わせスペース(オープン)
あり
複合機
有料
郵便受け
プランによる
駐輪場
ー
駐車場
ー
共用Wi-Fi
無料
ドリンクサービス
無料
ゴミ収集
共通ゴミ箱
ペット
ー
シャワー
ー
TELブース
ー
ロッカー
有料
宅配ロッカー
ー
ゲスト同伴(共有ラウンジ)
可能
利用時間(共有ラウンジ)
時間制限
会議室
有料
セキュリティ
入退出管理
カードキー
受付
有人
警備
無人システム
Office Photos
Exterior Photos

外観_オフィスはこちらのビルの3階になります。 
外観_エントランス。オプションにて専用のポストをご利用いただくことが可能です。
Shared Space Photos

共用部_オープンスペース。大テーブルの席など様々な席があり、その日の気分に合わせてお好きな席をご利用いただけます。 
共用部_オープンスペース。カウンター席では自然光を浴びながらお仕事に取り掛かることが可能です。 
共用部_打合せコーナー。オープンスペースには無料の打ち合わせコーナーが設けられています。 
共用部_ラウンジ。気分転換やお食事の際にご利用いただけます。
Private Space Photos

個室_Aタイプ。コンパクトな設計となっており、インターネット環境・防音設備が備え付けとなっています。 
個室_Bタイプ。窓付きの個室となっており、収納スペースも確保されています。 
個室_Eタイプ。2名様でご利用いただくことができ、広々とした空間となっています。
Other Photos

共用部_会議室。予約制の会議室となっており、常設の43型大型モニタにてWEB会議なども開催可能です。 
設備_複合機。複合機のほか、シュレッダーや裁断機、大型ホッチキスなどをご用意しています。 
設備_ドリンクサービス。コーヒーやカプチーノなど様々なバリエーションのドリンクをお楽しみいただけます。 
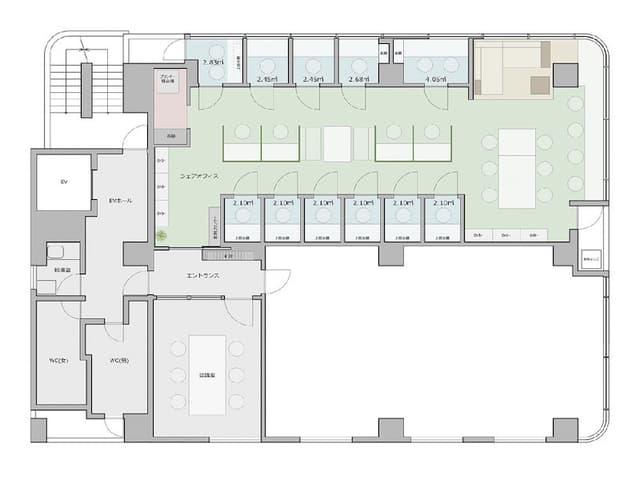
その他_フロアマップ。
Map
戸塚 再開発により大きく変化した街
グランエス(Gran_S)東戸塚のある戸塚エリアは大規模な再開発により大変暮らしやすい環境へと変化しました。大規模な再開発は戸塚駅を中心に1997年から2013年にかけて行われ、ショッピングモールや区役所の整備により生活に必要なものは駅周辺で済ませることができるようになりました。また、こうした商業利便性の高さに加え、交通利便性の高さも戸塚エリアの魅力となっています。東京駅や渋谷駅などに乗り換えなしでアクセス可能であることに加え、東京のベッドタウンである横浜にも電車で10分ほどで移動することが可能です。交通利便性に関しては電車のみならず、自動車での移動もスムーズに行える環境となっています。実際にグランエス(Gran_S)東戸塚の周辺では今井インターと川上インターの2箇所の出入口を利用することが可能です。戸塚エリアはこうした生活環境と交通環境が整っていることもあり、幅広い世代から人気のエリアとなっています。
app.buildings.id.facilityComment
Gran-S東戸塚は、JR東戸塚駅から徒歩6分、緑豊かな住宅街近くにオープンしたばかりの静かなレンタルオフィスです。
落ち着いた雰囲気のフロア、上質にこだわったオフィス家具、ゆっくりくつろげる共有スペース、
いつでも召しあがれるドリンクサービスなど、心地よさを追求した仕様となっています。
他にもフリーWi-Fi、複合機やロッカー、ポスト等、必要なものもご準備いたしました。
中でも個室には防音設備を施してあり、プライバシーを守る配慮がされているだけでなく、
個別のネットワークを用意してありますのでセキュリティ面でも安心です。
フリーデスクは、大きな窓に面したカウンター席、広いテーブル席、集中できる半個室席の中から、
その日の気分でお好きな席をお選びいただけます。
また、Gran-S東戸塚の特色として、人のつながりを重視することがあげられます。
Gran-Sというビジネスコンシェルジュを通して、
行政書士や社会保険労務士、中小企業診断士や税理士といった各種専門家チームに、
必要に応じてご紹介できる新しいスタイルとなっています。
士業や起業家をはじめとするビジネスパーソンの、さまざまなワークスタイルを応援するレンタルオフィスです。
Frequently Asked Questions
I want to know the monthly rent and initial costs of グランエス(Gran_S)東戸塚.
JUST FIT OFFICE lists the rental fees and initial costs of グランエス(Gran_S)東戸塚.
I want to check the vacancy status of グランエス(Gran_S)東戸塚
JUST FIT OFFICE lists the available sections of グランエス(Gran_S)東戸塚.
I want to make an inquiry about グランエス(Gran_S)東戸塚
You can inquire about this rental office here.
If you prefer to call, please contact JUST FIT OFFICE Reception Center (03-6555-3404 ).
Can you introduce rental offices other than グランエス(Gran_S)東戸塚?
JUST FIT OFFICE introduces rental offices that suit you through a dedicated concierge for companies with 5 or more employees.
Please check here for details.


