


+16
Private Office
Free Desk
Virtual Office
Completion
- 1987年5月/2014年リノベーションOPEN
Address
- 東京都港区西新橋2-4-3プロス西新橋ビル6-7F
Nearest Station
内幸町駅(徒歩3分)
虎ノ門駅(徒歩5分)
新橋駅(徒歩6分)
Recruiting sections 【2 sections】
Free Desk
- Monthly Cost
- components.cards.roomDetail.includingTax8,800yen/month
- Available Move-in Date
- 即日可
- Maximum Capacity
- Capacity1persons
Private Office
- Monthly Cost
- components.cards.roomDetail.includingTax131,560yen/month
- Available Move-in Date
- 即日可
- Maximum Capacity
- Capacity3persons
Features and recommended points of this rental office
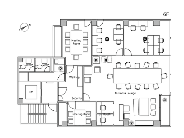
THE HUB(ザハブ)新橋ウエストはアクセスに優れた新橋駅を徒歩圏内に持つ「シェアワークプレイス」です。新橋駅以外にも銀座線の通る虎ノ門駅や三田線の通る内幸町駅なども近くにあることから都内各地へのアクセスが容易です。オフィスはビル内の6階と7階にあり、ラウンジや会議室、待合スペースといった共用スペースは6階に集約されています。2タイプある会議室は4名用Meeting Room:330円/30分(税込)、8名用Meeting Room:550円/30分(税込)で利用可能です。オフィス内装はシックなデザインで落ち着いた雰囲気の環境で統一されています。ネット利用、フリードリンクといった無料サービスに加え、オプションにて会社設立代行、電話秘書といった様々なサービスを追加できます。
app.buildings.id.ratingBySortPoint.title
app.buildings.id.ratingBySortPoint.cautionEquipment and Conditions
※ Not applicable to virtual offices.
契約
契約種別
施設利用契約
契約期間
その他
法人登記
可
期間内解約
1か月前予告
共有スペース・設備
ネットワーキング
ー
給湯室
シンクのみ
打ち合わせスペース(オープン)
ー
複合機
有料
郵便受け
プランによる
駐輪場
ー
駐車場
ー
共用Wi-Fi
無料
ドリンクサービス
無料
ゴミ収集
共通ゴミ箱
ペット
ー
シャワー
ー
TELブース
ー
ロッカー
ー
宅配ロッカー
ー
ゲスト同伴(共有ラウンジ)
ー
利用時間(共有ラウンジ)
時間制限
会議室
有料
セキュリティ
入退出管理
カードキー
受付
ー
警備
無人システム
Office Photos
Shared Space Photos

無料ラウンジ 
ラウンジ内ブース席 
オフィス共用部分 
共用部_会議室。4名用は330円/30分(税込)、8名用は550円/30分(税込)でご利用いただけます。
Private Space Photos

3名用(完全個室・家具付) 
3名用(完全個室・家具付) 
2名用(完全個室・家具付) 
共用部分
Other Photos

無料ラウンジ 
その他_廊下。ホテルのようにシンプルで上品なデザインとなっています。 
6F フロアMAP 
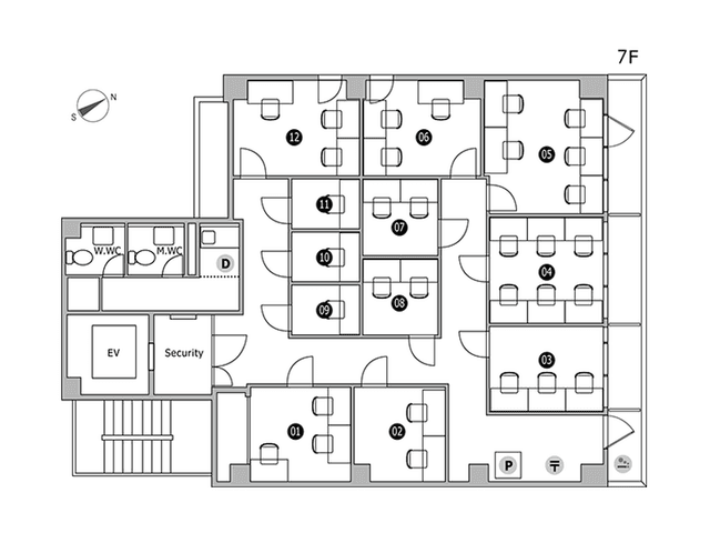
7F フロアMAP
Map
新橋 東西南北と都内のアクセスが良好
THE HUB (ザハブ) 新橋ウエストは、新橋をはじめ、内幸町や虎ノ門も徒歩圏内の好立地。地域には丸ノ内・品川といった都内でも有数のビジネス街が隣接し、日中はビジネスマンで賑わっています。新橋は鉄道発祥地としての歴史もあり、日本初の鉄道が開通した駅として、旧新橋駅舎を再現した「旧新橋駅停車場鉄道歴史展示場」があり、観光スポットとして鉄道ファンだけでなく多くの人が集まっています。また、新橋は再開発が進んでいるエリアでもあり、利便性・機能性の向上も期待できます。ビジネスパーソンの憩いの場・鉄道の歴史がある場として賑わいながら、発展を続けるエリアです。
app.buildings.id.facilityComment
「こんなオフィスで働きたい」を叶えるラウンジ付きレンタルオフィス
◆オフィスの特徴:新橋・虎ノ門・内幸町が徒歩圏内/エリアNo.1のコスパ/高品質なオフィスデザイン/無料の共用ラウンジ/全室個室オフィス/定員数の家具完備/ネット完備/フリードリンク/全国1,000拠点(提携施設含む)利用可能
Recruitment ended sections 【4 sections】
Private Office
- Monthly Cost
- components.cards.roomDetail.includingTax48,400yen/month
- Available Move-in Date
- 即日可
- Maximum Capacity
- Capacity1persons
Private Office
- Monthly Cost
- components.cards.roomDetail.includingTax131,890yen/month
- Available Move-in Date
- 即日可
- Maximum Capacity
- Capacity3persons
Private Office
- Monthly Cost
- components.cards.roomDetail.includingTax146,300yen/month
- Available Move-in Date
- 5月中旬
- Maximum Capacity
- Capacity6persons
Private Office
- Monthly Cost
- components.cards.roomDetail.includingTax172,260yen/month
- Available Move-in Date
- 即日可
- Maximum Capacity
- Capacity5persons
Frequently Asked Questions
I want to know the monthly rent and initial costs of THE HUB(ザハブ)新橋ウエスト.
JUST FIT OFFICE lists the rental fees and initial costs of THE HUB(ザハブ)新橋ウエスト.
I want to check the vacancy status of THE HUB(ザハブ)新橋ウエスト
JUST FIT OFFICE lists the available sections of THE HUB(ザハブ)新橋ウエスト.
I want to make an inquiry about THE HUB(ザハブ)新橋ウエスト
You can inquire about this rental office here.
If you prefer to call, please contact 050-5385-2553.
Can you introduce rental offices other than THE HUB(ザハブ)新橋ウエスト?
JUST FIT OFFICE introduces rental offices that suit you through a dedicated concierge for companies with 5 or more employees.
Please check here for details.
















