

+21
Private Office
Free Desk
Dedicated Desk
Virtual Office
Recruiting sections 【4 sections】
Virtual Office
- Monthly Cost
- components.cards.roomDetail.includingTax9,680yen/month
- Available Move-in Date
- 即日可能
- Maximum Capacity
- Capacity0persons
Free Desk
- Monthly Cost
- components.cards.roomDetail.includingTax15,180yen/month
- Available Move-in Date
- 即日可能
- Maximum Capacity
- Capacity1persons
Dedicated Desk
- Monthly Cost
- components.cards.roomDetail.includingTax38,500yen/month
- Available Move-in Date
- 即入居可
- Maximum Capacity
- Capacity1persons
Private Office
- Monthly Cost
- components.cards.roomDetail.includingTax141,900yen/month
- Available Move-in Date
- 即入居可
- Maximum Capacity
- Capacity5persons
Features and recommended points of this rental office
箱崎インキュベーションセンターは一番町インキュベーションセンターと同様、ビジネスのスタートアップのサポートが充実したレンタルオフィスです。主な施設として個室・コワーキングスペース・会議室がございます。会議室の利用やWi-Fiの利用・コンシェルジュサービスなどは無料または共益費に含まれており、少ない負担で充実したサービスを利用できます。施設は24時間利用可能となっていますので、多様な稼働スタイルに対応出来ます。個室に関してはオフィスとして必要な登記サービスもございますので、機能性に困ることはないでしょう。また、当施設は東京メトロ日比谷線と東西線が乗り入れる茅場町駅から徒歩3分の好立地オフィスのため、都心へのアクセスにも優れています。都内でオフィスをお探しの方はお気軽にお問合せ下さい。
app.buildings.id.ratingBySortPoint.title
app.buildings.id.ratingBySortPoint.cautionEquipment and Conditions
※ Not applicable to virtual offices.
契約
契約種別
賃貸借契約
契約期間
1年契約
法人登記
可
期間内解約
その他
共有スペース・設備
ネットワーキング
あり
給湯室
シンク、電子レンジ
打ち合わせスペース(オープン)
あり
複合機
有料
郵便受け
有人受付
駐輪場
無料
駐車場
ー
共用Wi-Fi
無料
ドリンクサービス
有料
ゴミ収集
共通ゴミ箱
ペット
ー
シャワー
ー
TELブース
あり
ロッカー
有料
宅配ロッカー
ー
ゲスト同伴(共有ラウンジ)
ー
利用時間(共有ラウンジ)
24時間
会議室
プランによる
セキュリティ
入退出管理
カードキー
受付
有人
警備
無人システム
Office Photos
Exterior Photos
外観_川沿いに建つスマートなオフィスです。 
ビル屋上_景色の良い屋上です。自動販売機もあり休憩スペースも完備されています。 外観_1階ラウンジ 
ビル内_テレカンブースも3室あります。
Shared Space Photos
コワーキングスペース_自由に利用することができるデスクです コワーキングスペース_大きな窓があり、景色も良いです! 会議室_オフィス内に2部屋ある会議室です。 
オフィス内_複合機、メールBOXも完備。
Private Space Photos
個室_リーズナブルな価格でオフィスを構える事が出来ます 
個室_4~5名様用のお部屋もあります。 個室_家具類は貸し出しする事も可能です(在庫に限りがあるので無い場合はご自分でご用意いただく形になります) 
個室_リーズナブルな価格でオフィスを構える事が出来ます
Other Photos

受付_有人の受付があるので来客の対応などは安心です 
オフィス内_オフィスオアシスのドリンクやお菓子の販売、ドリップコーヒーの販売もオフィス内に! 個室_各個室に施錠が行えるので安全面も安心ですね 
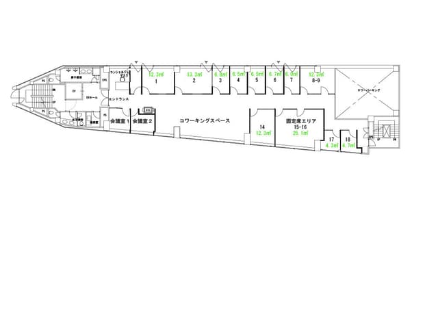
オフィス案内図
app.buildings.id.photos.nearKnowledge
近隣の郵便局_IBM箱崎ビル内郵便局(徒歩4分) 近隣の銀行_三井住友銀行エーティーエムサービス東日本支店箱崎出張所(徒歩4分) 近隣のコンビニ_ローソン 箱崎湊橋店(徒歩2分) 近隣の飲食店_ビルの近くにはおいしそうなお店が多くあります。また、茅場町エリアまで歩けば飲み屋も多くあります。
Map
箱崎 IT系ならもう知ってる?注目のビジネスエリア
日本橋箱崎は近年、マックスやIBMなどのシステム開発、IT企業大注目のエリア。その中でも日本橋川添いにある箱崎インキュベーションセンターは、証券会社の多い茅場町エリアに隣接しているので、ビジネスを始めるのにこれほど便利な場所はそうそうないと言えるでしょう。水天宮方面には首都高速道路9号深川線、羽田、成田の各空港行きのバスが発着する東京シティエアターミナルがあります。内覧をされた際には是非周辺散策も行い、利便性の高さを確認しましょう!
app.buildings.id.facilityComment
Recruitment ended sections 【10 sections】
Virtual Office
- Monthly Cost
- components.cards.roomDetail.includingTax1,100yen/month
- Available Move-in Date
- 即日可能
- Maximum Capacity
- Capacity0persons
Private Office
- Monthly Cost
- components.cards.roomDetail.includingTax55,000yen/month
- Available Move-in Date
- 入居不可
- Maximum Capacity
- Capacity3persons
Private Office
- Monthly Cost
- components.cards.roomDetail.includingTax69,410yen/month
- Available Move-in Date
- 11月上旬入居可
- Maximum Capacity
- Capacity2persons
Private Office
- Monthly Cost
- components.cards.roomDetail.includingTax71,500yen/month
- Available Move-in Date
- 入居不可
- Maximum Capacity
- Capacity3persons
Private Office
- Monthly Cost
- components.cards.roomDetail.includingTax71,500yen/month
- Available Move-in Date
- 7月上旬入居可
- Maximum Capacity
- Capacity3persons
Private Office
- Monthly Cost
- components.cards.roomDetail.includingTax78,650yen/month
- Available Move-in Date
- 入居不可
- Maximum Capacity
- Capacity3persons
Private Office
- Monthly Cost
- components.cards.roomDetail.includingTax141,900yen/month
- Available Move-in Date
- 入居不可
- Maximum Capacity
- Capacity5persons
Private Office
- Monthly Cost
- components.cards.roomDetail.includingTax141,900yen/month
- Available Move-in Date
- 3月下旬入居可
- Maximum Capacity
- Capacity5persons
Private Office
- Monthly Cost
- components.cards.roomDetail.includingTax152,900yen/month
- Available Move-in Date
- 即日可能
- Maximum Capacity
- Capacity5persons
Private Office
- Monthly Cost
- components.cards.roomDetail.includingTax152,900yen/month
- Available Move-in Date
- 即入居可
- Maximum Capacity
- Capacity5persons
Frequently Asked Questions
I want to know the monthly rent and initial costs of 箱崎インキュベーションセンター.
JUST FIT OFFICE lists the rental fees and initial costs of 箱崎インキュベーションセンター.
I want to check the vacancy status of 箱崎インキュベーションセンター
JUST FIT OFFICE lists the available sections of 箱崎インキュベーションセンター.
I want to make an inquiry about 箱崎インキュベーションセンター
You can inquire about this rental office here.
If you prefer to call, please contact 050-5272-2230.
Can you introduce rental offices other than 箱崎インキュベーションセンター?
JUST FIT OFFICE introduces rental offices that suit you through a dedicated concierge for companies with 5 or more employees.
Please check here for details.













