
2021年4月、飲食店や商業施設が多く幅広い年代から人気の池袋駅徒歩3分のところに、レンタルオフィス「ハローオフィス池袋」がオープンします。
すでに問い合わせや内覧の申し込みが入っている注目度の高いレンタルオフィス、「ハローオフィス池袋」の特徴や魅力をお伝えします。
レンタルオフィス事業を20年近く行う東証二部上場企業エリアリンクが運営

:エリアリンク株式会社のオフィスが入る秋葉原のUDXビルディング
今回ご紹介するレンタルオフィス「ハローオフィス池袋」を運営しているのは、1995年設立で創業26年の歴史を持つエリアリンク株式会社です。
エリアリンクが空きビルを活用したSOHO「ハローオフィス」事業を開始したのは2004年のことで、以来レンタルオフィス事業を17年以上続けています。
レンタルオフィス事業で実績のある東証二部上場企業が運営しているという点も、安心して利用できるポイントとなっています。
都心のレンタルオフィス「ハローオフィス」

エリアリンクのハローオフィス事業では、渋谷・代々木・西新宿・銀座・新橋など、ビジネスの主要エリアで都内に15拠点ほどのレンタルオフィスを展開しています。
どのレンタルオフィスも完全個室となっているのが特徴的で、好立地とコスパの良さで人気のレンタルオフィスです。
【ハローオフィス拠点】
西新宿・新宿・渋谷・代々木・新橋・銀座・御徒町・浅草・秋葉原・錦糸町・神田・蒲田・東陽町
「ハローオフィス池袋」の魅力

多くの人気拠点に続き2021年4月中旬にオープン予定なのが、「ハローオフィス池袋」です。ここからは物件の詳細や魅力について、詳しくご紹介していきます。
池袋駅から徒歩3分とアクセス抜群
「ハローオフィス池袋」の魅力の一つはアクセスの良さです。多数の路線が乗り入れる巨大ターミナル池袋駅から徒歩3分という好立地で、しかも信号を一つも渡ることなくオフィスまで直行することが可能です。
落ち着いた雰囲気のおしゃれな内装
「ハローオフィス池袋」のもう一つの魅力は、オフィスのデザイン性の高さです。内装デザインにこだわって設計された物件で、洗練された雰囲気のシェアオフィスとなっています。
黒やグレーを基調とした内装はシックでモダンな雰囲気となっており、木目調のドアや壁がナチュラルで落ち着いた雰囲気を演出しています。
完全個室に特化したレンタルオフィス
ハローオフィス池袋は、すべての部屋が鍵付きの完全個室となっています。シェアオフィスのセキュリティ面に不安がある方、機密性の高い情報を扱うビジネスを行っている方でも、安心して利用できます。
コスパの良さも大きな魅力
「ハローオフィス」全拠点に共通しているのが好立地とコスパの良さで、ハローオフィス池袋も例外ではありません。1名利用の完全個室が月額37,400円(税込)からと、都内一等地にある自分だけの個室オフィスを格安で利用することが可能です。
共有スペースなどは最低限にとどめられていて、余計なコストがかからない分リーズナブルに利用できるのがハローオフィスの魅力となっています。
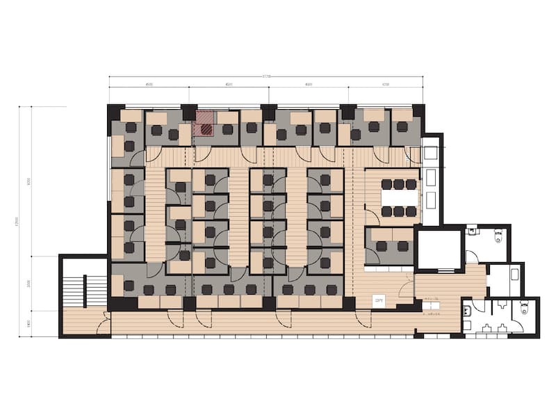
「ハローオフィス池袋」の設備とサービス

:ハローオフィス池袋 見取り図
ハローオフィス池袋は24時間365日いつでも好きな時に利用可能です。ネット環境(光回線)、室内家具(机と椅子)、空調といったビジネスに必須の設備サービスも無料で提供されています。
安心便利なセキュリティ
オフィスエントランスや個室はしっかり施錠管理されているので、女性一人でも安心して利用することができます。エントランスの入退館はICカードで管理されており、お手持ちのSuicaやPASMOなどをwebで登録すればカードキーとして利用することが可能です。
オフィス内には無人コンビニも
フロアにはミニストップが運営する「ミニストップポケット」という無人コンビニも設置されているので、ビルの外にまで買い物にいく時間がないという方にも重宝されます。お水やお茶などの飲料、栄養バーやお菓子が交通系のICカード決済で購入可能です。
ミーティングルーム
6人まで収容可能な、ミーティングルームも完備されています。ミーティングルームにはリモート会議などで使えるモニター、スピーカーも設置されていて自由に利用できます。
ミーティングルームは予約制で、1日1時間までは無料となっています。1時間を超えた場合の利用料は、30分ごとに550円です。
女性専用お手洗いとパウダーエリア
ハローオフィス池袋は、デザイナーと施工担当のトップの方が女性ということで女性の気になるところまでしっかりと気配りがなされています。
レンタルオフィスでは、お手洗いが男女共用となっているところも少なくありませんが、ハローオフィス池袋ではお手洗いは男女別になっていて、お化粧直しもしやすい設計となっています。
コロナ対策
このご時世だとオフィスのコロナ対策も気になる点だと思います。ハローオフィス池袋では1時間に5回、フロア全体の空気が入れ替わるようになっています。
無料・有料設備
【無料設備・サービス】
ネット環境(光回線)
空調はエリアごとに調整可能
各部屋個別ポスト
室内家具(机椅子)
宅配ロッカー
【有料設備】
複合機(毎月白黒100枚、カラー20枚までは無料)
会議室(完全個室、毎日1時間までは無料)
【その他】
水光熱費無料
敷地内屋外に喫煙スペースあり
再開発が進む池袋の魅力
再開発が進められている池袋駅周辺の魅力や、ハローオフィス池袋の周辺情報をご紹介します。
新しい大型商業施設がオープン

:出典 HAREZA IKEBUKURO公式HP(2021年3月1日)
ハローオフィス池袋は、2020年7月にグランドオープンした新複合商業施設「ハレザ(Hareza) 池袋」にもほど近く、歩いて10分もかからない距離です。ハレザ池袋にはショップやレストランの他に、10スクリーンを有する巨大シネコン「TOHOシネマズ池袋」などが出店しています。
2019年には池袋駅東口に商業施設「キュープラザ池袋」がオープンしており、都内最大のシネコン「グランドシネマサンシャイン」や新業態の飲食店などの出店が話題となりました。
池袋東口エリアは「女子のアキバ」と呼ばれるなど、アニメやサブカルの新たな発信地としても注目を集めているエリアです。
駅近くにある公園や豊島区役所がリニューアルされ、駅周辺の雰囲気もかなり変化しています。今後も再開発が続く予定で、池袋はさらに進化し便利になることが期待できる注目のエリアとなっています。
オフィス周辺情報

:池袋駅東口周辺
池袋の駅周辺には主要銀行の支店が揃っていますし、歩いて4分のところに郵便局、徒歩1分のところにはファミリーマートがあります。周辺は繁華街なので、ランチや仕事後の夕食・テイクアウトなどの選択肢も豊富です。
すぐ近くにはビックカメラやパルコなどもあり、仕事の合間の気分転換や仕事帰りの買い物にも非常に便利な立地です。
まとめ
ハローオフィス池袋は、1〜3名までのバリエーションがある完全個室のレンタルオフィスです。
利便性の高いターミナル駅である池袋から歩いてすぐという抜群の好立地で、リーズナブルにオフィスを確保したいと考えている方におすすめの物件となっています。
オープンは4月中旬の予定ですが、3月の下旬から一部区画の内覧が可能です。池袋エリアで新しいオフィスや仕事用のスペースをお探しの方は、ぜひ一度内覧に訪れてみてください。
物件情報
ハローオフィス池袋
物件情報
住所 | 東京都豊島区東池袋1-42-14 28山京ビル7階 |
|---|---|
アクセス | 池袋駅(徒歩3分):山手線・埼京線・宇都宮線・湘南新宿ライン・丸ノ内線 |
営業時間 | 契約拠点は24時間365日利用可能 |
公式ホームページ | https://www.hello-office.net/list/?bukken_no=6532 |

JUST FIT OFFICE マガジン編集部
投稿者紹介
はじめまして!当サービスの執筆を担当している「JFO マガジン編集部」です。宜しくお願いいたします。私たちは、オフィス探しに限らず、起業や創業、移転に付随する様々な情報をご提供させていただき、少しでも皆さまのお手伝いが出来ればと考え、執筆しています。
【レンタルオフィス・オフィスビル特集】関連記事
【レンタルオフィス・オフィスビル特集】記事一覧へPICK UP 特集記事










